
giv GmbH Immobilien & Vermögensplanung
004 ···
Nr. anzeigenPreise & Kosten
Provision für Käufer
Die Käufercourtage beträgt 3,57 % inkl. MwSt. auf den Marktwert. inkl. MwSt.
Lage
Makrolage
Grünwald zählt zu den exklusivsten Wohnlagen im südlichen Umland von München. Die eigenständige Gemeinde liegt am westlichen Isarhochufer und überzeugt durch ihre ruhige, grüne Umgebung sowie die unmittelbare Nähe zur Landeshauptstadt. Über die Bundesstraße B11 und die Straßenbahnlinie 25 ist das Münchner...
Das Haus
Kategorie
Villa
Baujahr
1972
Energie & Heizung
Warum sehe ich diese Anzeige? – Du siehst diese Anzeige basierend auf Ihrer Navigation auf unserer Website und den Suchkriterien, die du verwendet hast.
Energieausweistyp
Bedarfsausweis
Gebäudetyp
Wohngebäude
Wesentliche Energieträger
OEL
Gültigkeit
bis 14.03.2035
Effizienzklasse
H
Endenergiebedarf
298,70 kWh/(m²·a)
Weitere Energiedaten
Haustyp
Massivhaus
Energieträger
Öl
Heizungsart
offener Kamin
Details
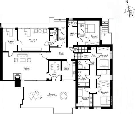
Objektbeschreibung
Diese Immobilie zählt zweifellos zu den wenigen verfügbaren Grundstücken in begehrter Lage von Grünwald. Auf einer Fläche von ca. 1.138?m², unmittelbar am Rand des Grünwalder Forst, bietet das Anwesen ein außergewöhnliches Maß an Privatsphäre und Ruhe.
Das Grundstück ist eingefasst von herrschaftlichen Villenanwesen...
Ausstattung
** Private Zufahrt zum Grundstück
** Uneinsehbarer Garten
** Ruhige exklusive Villenlage
** Separater Eingang zum ausgebautem Untergeschoss
** Eigener Zugang zum Grünwalder Forst
** 4 überdachte PKW Stellplätze
** Gesamtwohn- und Nutzfläche ca. 413...
Preisinformation
4 Carportplätze
Weitere Informationen
Sonstiges
SIE HABEN INTERESSE?
Gerne steht Ihnen Ihr persönlicher Ansprechpartner für Fragen oder einen Besichtigungstermin zur Verfügung. Alle Kontaktdaten finden Sie auf der letzten Seite.
DISCLAIMER
Dieses Exposé ist eine Vorinformation, da als Rechtsgrundlage allein der notarielle Kaufvertrag...
Anbieter der Immobilie
Online-ID: 2llz85y
Referenznummer: HpR-M-QK562-NaSc
Finde Angebote wie dieses
Hier geht es zu unserem Impressum, den Allgemeinen Geschäftsbedingungen, den Hinweisen zum Datenschutz und nutzungsbasierter Online-Werbung.