

EG Immobilien Ernst Graf
Herr Ernst Graf
068 ···
Nr. anzeigenPreise & Kosten
Provision für Käufer
Bei einem Kaufvertrag berechnen wir 3,57 % des Kaufpreises incl. MWST
Lage
Das Objekt befindet sich in St. Ingbert (NORD), Nähe des Naherholungsgebiets - Elstersteinpark“, Nähe Schafweiher und Wald, sowie Kreiskrankenhaus und Gesundheitspark.
Die Innenstadt von St. Ingbert ist fußläufig schnell zu erreichen.
Stadtkern und große Einkaufsmärkte (Kaufland- Rewe-Aldi-Lidl-DM Markt etc.) nur...
Das Haus
Kategorie
Einfamilienhaus
Derzeitige Nutzung
frei
Energie & Heizung
Warum sehe ich diese Anzeige? – Du siehst diese Anzeige basierend auf Ihrer Navigation auf unserer Website und den Suchkriterien, die du verwendet hast.
Energieausweistyp
Bedarfsausweis
Gebäudetyp
Wohngebäude
Weitere Energiedaten
Haustyp
Massivhaus
Energieträger
Gas
Heizungsart
Fußbodenheizung, Zentralheizung
Details
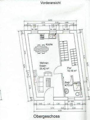
Objektbeschreibung
Einfamilienhaus - Nähe Gesundheitspark und Krankenhaus mit zwei getrennten Heizsystemen!
Ein Glücksfall bei Kosten-und Energieersparnis.
Renoviertes Einfamilienhaus (Reihenhaus) mit schönem, nicht einsehbarem Innenhof, Terrasse, Garten und 2 Autoabstellplätzen vor dem Objekt, in St. Ingbert, Nähe Elsterstein...
Weitere Informationen
Sonstiges
Das Haus wurde 2004 komplett saniert und entkernt.
Inclusive Fußböden, Decken , Heizung ,Elektro - und Sanitärinstallation.
Daher überall gleiche Fußböden mit Kacheln im Toscana-Stil
ISO Fenster und Schallschutzfenster zur Straße hin....
EG elektr. Rolläden
2 Bäder (1 x Wannenbad, 1x...
Anbieter der Immobilie
EG Immobilien Ernst Graf
Schwarzer Weg 9, 66386 St. Ingbert

Online-ID: 2llzx5r
Referenznummer: 061025
Finde Angebote wie dieses
Hier geht es zu unserem Impressum, den Allgemeinen Geschäftsbedingungen, den Hinweisen zum Datenschutz und nutzungsbasierter Online-Werbung.