
Raiffeisen Immobilien Vermittlung GmbH
Frau Sandra Schnecker
+43 ···
Nr. anzeigenPreise & Kosten
Provision für Käufer
provisionsfrei
Lage
Stegersbach - Entspannung, Aktivität und Lebensqualität im sonnigen Südburgenland
Die Thermenregion Stegersbach im Südburgenland zählt zu den modernsten Wellnessdestinationen Europas. Eingebettet in die sanft hügelige Landschaft der Region, bietet Stegersbach eine außergewöhnliche Kombination aus Erholung, Aktivität und...
Das Haus
Baujahr
2026
Bezug
Nach Vereinbarung
Energie & Heizung
Warum sehe ich diese Anzeige? – Du siehst diese Anzeige basierend auf Ihrer Navigation auf unserer Website und den Suchkriterien, die du verwendet hast.
Heizwärmebedarf (HWB)
38,70 kWh/(m²·a)
Weitere Energiedaten
Heizungsart
Luft-/Wasser-Wärmepumpe, Zentralheizung
Details
Objektbeschreibung
Kurzbeschreibung
Modernes Wohnen im Stil des Südburgenlands - Neubau in Stegersbach
Inspiriert vom traditionellen Kellerstöckl entstehen in Stegersbach 6 exklusive Neubauten - naturnah, ökologisch und mit Blick auf die sanften Hügel der Region.?? 500 m zur Therme Stegersbach??? 1,5 km zum größten Golfresort Österreichs?...
Ausstattung
Die Häuser werden mit einem umfangreichen Leistungspaket angeboten. Auf Wunsch auch gerne bezugsfertig. * Fundamentplatte aus wasserundurchlässigen Beton* Ortbetonwände im UG für höchste Stabilität* Außenwände aus innovativen Wienerberger W.i. Ziegel* Elementdecke über UG und EG* Dachstuhl inkl. Dacheindeckung mit...
Preisinformation
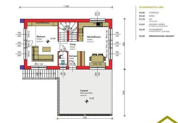
2 Carportplätze
Weitere Informationen
Stichworte
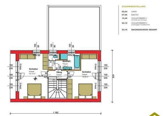
Anzahl der Schlafzimmer: 2, Anzahl Terrassen: 1, Bundesland: Burgenland, 3 Etagen
Anbieter der Immobilie
Online-ID: 2lm6d5e
Referenznummer: 0001009822
Finde Angebote wie dieses
Günstige Immobilienfinanzierung einfach online berechnen
Persönliches Angebot berechnenWarum sehe ich diese Werbung? – Du siehst diese Werbung basierend auf Deiner Navigation auf unserer Website und der von Dir verwendeten Suchkriterien.
Diese Werbung wird bezahlt von durchblicker
Werbung melden
Hier geht es zu unserem Impressum, den Allgemeinen Geschäftsbedingungen, den Hinweisen zum Datenschutz und nutzungsbasierter Online-Werbung.