

Immobilienagentur Buchenau
Herr Ramon Buchenau
084 ···
Nr. anzeigenPreise & Kosten
Provision für Käufer
2,98 % incl. 19 % MwSt.
Lage
Solnhofen ist ein malerischer Ort im Altmühltal, im Landkreis Weißenburg-Gunzenhausen in Bayern, genauer gesagt im Naturpark Altmühltal in Mittelfranken. Er liegt direkt an der Altmühl, umgeben von Kalkfelsen, Wäldern und typischer Jurahügellandschaft. Hier sind einige zentrale Merkmale und Besonderheiten des Ortes:
Das Haus
Kategorie
Doppelhaushälfte
Baujahr
2022
Derzeitige Nutzung
vermietet
Energie & Heizung
Warum sehe ich diese Anzeige? – Du siehst diese Anzeige basierend auf Ihrer Navigation auf unserer Website und den Suchkriterien, die du verwendet hast.
Energieausweistyp
Bedarfsausweis
Gebäudetyp
Wohngebäude
Baujahr laut Energieausweis
2022
Wesentliche Energieträger
ELEKTRO
Gültigkeit
bis 20.10.2032
Effizienzklasse
A+
Endenergiebedarf
18,00 kWh/(m²·a)
Weitere Energiedaten
Heizungsart
Fußbodenheizung, Luft-/Wasser-Wärmepumpe
Details
Objektbeschreibung
Willkommen in Ihrem Zuhause, das keine Wünsche offenlässt!
Massive Bauweise Stein auf Stein !
Diese Immobilie begeistert mit einer Ausstattung, die Komfort, Stil und Lebensqualität perfekt vereint.
Die hochwertige Einbauküche mit erstklassigen Elektrogeräten - darunter Spülmaschine, Kühlschrank, Backofen und...
Ausstattung
-Wärmepumpe
-zentrale Staubsauger-Anlage,
-traumhaft großer Garten,
-sonnige Terrasse,
-Einbauküche mit hochwertigen Elektrogeräten einschl. Spülmaschine, Kühlschrank,
Backofen, Induktionskochfeld,
-großformatige Fliesen im Eingangsbereich,
-hochwertige Fußböden in Wohn-/Schlaf- und...
Preisinformation
2 Stellplätze
Weitere Informationen
Stichworte
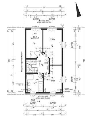
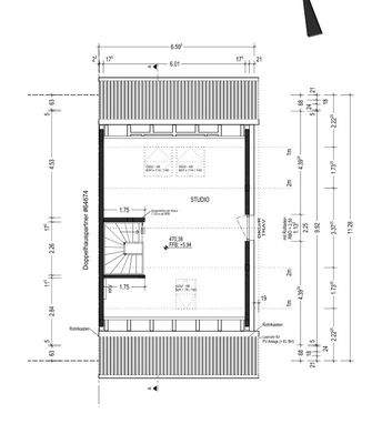
Nutzfläche: 30,00 m², Gesamtfläche: 172,00 m², Anzahl der Schlafzimmer: 4, Anzahl der Badezimmer: 1, Anzahl der separaten WCs: 1, Anzahl Terrassen: 1
Anbieter der Immobilie

Online-ID: 2lm6h5z
Referenznummer: 681
Finde Angebote wie dieses
Hier geht es zu unserem Impressum, den Allgemeinen Geschäftsbedingungen, den Hinweisen zum Datenschutz und nutzungsbasierter Online-Werbung.