
EHL Immobilien GmbH
Herr Daniel Bolataschwili
+43 ···
Nr. anzeigenPreise & Kosten
Provision für Käufer
3% des Kaufpreises zzgl. 20% USt.
Die Wohnung
Wohnungslage
4. Geschoss
Bezug
voraussichtlich 2028
Wohnanlage
Energie & Heizung
Warum sehe ich diese Anzeige? – Du siehst diese Anzeige basierend auf Ihrer Navigation auf unserer Website und den Suchkriterien, die du verwendet hast.
Heizwärmebedarf (HWB)
42,20 kWh/(m²·a)
Gesamtenergieeffizienz (fGEE)
0,93
Weitere Energiedaten
Energieträger
Fernwärme, Solar
Heizungsart
Fußbodenheizung
Details
Objektbeschreibung
Grand Garden: Modernes Wohnen nahe Wilhelminenberg
In der Roseggergasse 2-8, unweit des Wilhelminenbergs, entstehen 124 hochwertige Eigentumswohnungen. Die Wohnflächen reichen von ca. 39 m² bis 245 m² und bieten Grundrisse mit zwei bis sechs Zimmern - ideal für unterschiedlichste Wohnbedürfnisse.
Großzügige...
Weitere Informationen
Stichworte
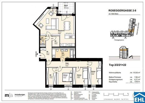
Nord-Ost-Balkon/Terrasse, Anzahl der Badezimmer: 1, Anzahl der separaten WCs: 1, Anzahl Balkone: 1, Balkon-Terrassen-Fläche: 7,84 m², Kellerfläche: 4,77 m², Bundesland: Wien, Wohnungsnr.: 21+22
Dokumente
Anbieter der Immobilie
EHL Immobilien GmbH
Prinz-Eugen-Straße 8-10, 1040 WIEN
Online-ID: 2lm845p
Referenznummer: OBGC202509290956094016481297978
Finde Angebote wie dieses
Günstige Immobilienfinanzierung einfach online berechnen
Persönliches Angebot berechnenWarum sehe ich diese Werbung? – Du siehst diese Werbung basierend auf Deiner Navigation auf unserer Website und der von Dir verwendeten Suchkriterien.
Diese Werbung wird bezahlt von durchblicker
Werbung melden
Hier geht es zu unserem Impressum, den Allgemeinen Geschäftsbedingungen, den Hinweisen zum Datenschutz und nutzungsbasierter Online-Werbung.