

VR Immo: Südwestfalen GmbH & Co. KG
Herr Jackson Kuschel
004 ···
Nr. anzeigenPreise & Kosten
Provision für Käufer
provisionsfrei
Lage
Werdohl - Kleinhammer
Die Immobilie befindet sich in der Osmecke, einer ruhigen und dennoch zentral gelegenen Straße in Werdohl. Die Umgebung zeichnet sich durch eine angenehme Wohnatmosphäre aus, die sowohl Familien als auch Berufstätige anspricht.
Die Osmecke bietet eine hervorragende Anbindung an den...
Die Wohnung
Kategorie
Terrassenwohnung
Derzeitige Nutzung
vermietet
Wohnanlage
Energie & Heizung
Warum sehe ich diese Anzeige? – Du siehst diese Anzeige basierend auf Ihrer Navigation auf unserer Website und den Suchkriterien, die du verwendet hast.
Energieausweistyp
Verbrauchsausweis
Gebäudetyp
Wohngebäude
Baujahr laut Energieausweis
1994
Wesentliche Energieträger
OEL
Gültigkeit
09.04.2019 bis 08.04.2029
Effizienzklasse
D
Endenergieverbrauch
117,50 kWh/(m²·a)
Weitere Energiedaten
Energieträger
Öl
Heizungsart
Zentralheizung
Details
Objektbeschreibung
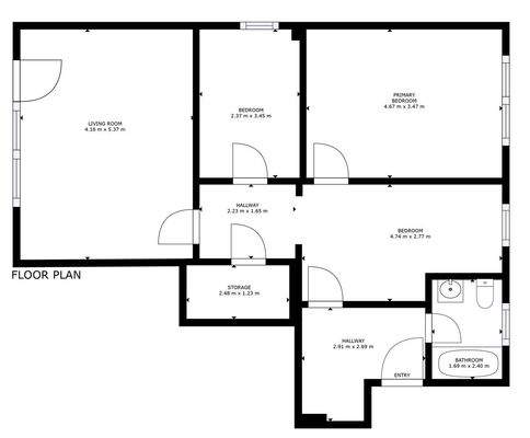
Diese ca. 74,05 m² große Wohnung ist ideal für eine kleine Familie, Best-Ager oder diejenigen, die sich von einer größeren Immobilie verkleinern möchten und dennoch Wert auf Qualität legen.
Ein besonderes Highlight der Wohnung ist die sonnige...
... Weitere Informationen sowie den virtuellen Rundgang erhalten...
Ausstattung
* Bad: in 2025 renoviert
* Balkon/ Terrasse: Terrasse
* Boden: Laminat, Fliesen und Vinyl | teilweise in 2025 erneuert
* Einheiten: 7
* Energieausweis: vorhanden
* Erbbaurecht: Laufzeit bis 23.12.2093 | 84,43 EUR monatlich
* Fenster: Kunststofffenster Doppelverglasung
* Frei: Vermietet ab dem...
Weitere Informationen
Sonstiges
HOMEPAGE:
Hier finden Sie nur einen kleinen Teil unserer Immo-Angebote. Finden Sie jetzt Ihre Traumimmobilie in Südwestfalen:
www.vr-immo-swf.de
FINANZIERUNG:
Alles aus einer Hand - sicher, günstig und erstklassig finanzieren.
Egal ob Sie bauen, kaufen, modernisieren oder...
Anbieter der Immobilie

Online-ID: 2lmav52
Referenznummer: VR-8386
Finde Angebote wie dieses
Hier geht es zu unserem Impressum, den Allgemeinen Geschäftsbedingungen, den Hinweisen zum Datenschutz und nutzungsbasierter Online-Werbung.