

von Schlapp Immobilien - Nadia Schlapp
Herr Heiko Kennel
065 ···
Nr. anzeigenPreise & Kosten
Provision für Käufer
4,76% des Kaufpreises inkl. 19% MwSt. inkl. MwSt.
Die Maklerprovision in Höhe von 4,76% errechnet sich durch 4% des Kaufpreises zzgl. 19% MwSt. und ist vom Käufer nach notarieller Beurkundung zu zahlen.
Lage
Speyer ist in den letzten Jahren zu dem Zuzugsgebiet Nummer 1 in Rheinland-Pfalz geworden - und das nicht ohne Grund. Die charmante Altstadt von Speyer bietet für jeden Geschmack den richtigen Platz, ob zum Frühstück, Kaffee oder Abendessen - kulinarisch gibt es hier Einiges zu entdecken. Auch an kulturellen Angeboten mangelt...
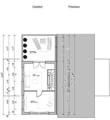
Das Grundstück
Details
Objektbeschreibung
Wohnen in Speyer, zentrumsnah und doch in idyllischer Umgebung? Das wird hier möglich sein. In einem der letzten, neuen Wohngebiete in Speyer mit direktem Blick auf den herrlichen Weiher in Speyer-Süd kann ihr Traumhaus entstehen!
Auf dem zum Verkauf stehenden Grundstück wird eine Doppelhaushälfte entstehen. Das Grundstück...
Weitere Informationen
Sonstiges
Von Schlapp Immobilien - Denn wir vermitteln Ihnen Zufriedenheit
Nutzen Sie die Kontaktmöglichkeit über dieses Exposé und vereinbaren unverbindlich einen Besichtigungstermin. Ich werde mich umgehend mit Ihnen zwecks Terminabstimmung in Verbindung setzen.
Ihr Ansprechpartner für dieses...
Anbieter der Immobilie
von Schlapp Immobilien - Nadia Schlapp
Schimmelhof 1, 54338 Schweich

Online-ID: 2lmbn5e
Referenznummer: BK00238
Finde Angebote wie dieses
Hier geht es zu unserem Impressum, den Allgemeinen Geschäftsbedingungen, den Hinweisen zum Datenschutz und nutzungsbasierter Online-Werbung.