

Visio Planhaus Schweich GmbH
Herr Jörg Demmerath
065 ···
Nr. anzeigenPreise & Kosten
Provision für Käufer
provisionsfrei
Lage
Das angebotene voll erschlossene Grundstück befindet sich im NBG.
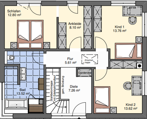
Das Haus
Geschosse
2 Geschosse
Baujahr
2026
Bezug
2027
Energie & Heizung
Warum sehe ich diese Anzeige? – Du siehst diese Anzeige basierend auf Ihrer Navigation auf unserer Website und den Suchkriterien, die du verwendet hast.
Weitere Energiedaten
Haustyp
KfW 55
Details
Ausstattung
Der angegebene Preis im Exposé beinhaltet das projektierte Hauskonzept auf Keller (Ausbauhaus) exklusive Grundstück. Die Architektenleistungen für Planung, Bauantragsbearbeitung und die Projektüberwachung sind ebenfalls im Preis inkludiert.
Es handelt sich bei dieser Projektierung um ein Effizienzhaus nach den...
Preisinformation
Dieses Grundstück wird von der Gemeinde vermarktet.
Weitere Informationen
Baustoff Nr. 1: Stein & Beton
Eure ganz bewusste und clevere Entscheidung!
Stein/Beton ist seit je her und bis heute (im Jahr 2025) unverändert der beliebteste Baustoff von Baufamilien in ganz Deutschland und Europa.
Ob Ihr einen Wolkenkratzer oder ein neues Zuhause mit Pool für eure Familie bauen möchtet...
Anbieter der Immobilie

Online-ID: 2lmbn5z
Finde Angebote wie dieses
Hier geht es zu unserem Impressum, den Allgemeinen Geschäftsbedingungen, den Hinweisen zum Datenschutz und nutzungsbasierter Online-Werbung.