
CASE a BERLINO GmbH
Frau Catrin Tomaselli (CaB)
+49 ···
Nr. anzeigenPreise & Kosten
Provision für Mieter
3,57 Nettokaltmieten inkl. MwSt
Die Provision in Höhe von 3,57 Nettokaltmieten inkl. MwSt ist verdient und fällig mit Abschluss des Mietvertrages.
Warum sehe ich diese Anzeige? – Du siehst diese Anzeige basierend auf Ihrer Navigation auf unserer Website und den Suchkriterien, die du verwendet hast.
Lage
Das Restaurant befindet sich in einer ruhigen Seitenstraße im renommierten Berliner Stadtteil Friedrichshain, nur wenige Schritte vom Am Comeniusplatz
entfernt sowie nahgelegen dem Kiez Boxhagener Platz. Die Lage verbindet den authentischen Charme des Viertels mit einer hervorragenden Anbindung an den öffentlichen...
Die Ladenfläche
Kategorie
Laden
Energie & Heizung
Warum sehe ich diese Anzeige? – Du siehst diese Anzeige basierend auf Ihrer Navigation auf unserer Website und den Suchkriterien, die du verwendet hast.
Weitere Energiedaten
Energieträger
Gas
Heizungsart
Etagenheizung
Details
Objektbeschreibung
Dieses charmante Restaurant, gelegen in einer ruhigen Seitenstraße nur wenige Schritte von der Warschauer Straße entfernt, begeistert sofort durch sein warmes und einladendes Ambiente, dank der gepflegten Einrichtung, der stimmungsvollen Beleuchtung und liebevollen Details.
Im Erdgeschoss (ca. 120 m²) befindet sich ein...
Ausstattung
- Ruhige, gefragte Lage am Comeniusplatz, nahe Warschauer Straße
- Einladender Hauptraum mit Design-Bar und warmem Ambiente
- Separater Gastraum für private Events, Geschäftsessen oder Gruppen
- Vollausgestattete Profiküche, betriebsbereit
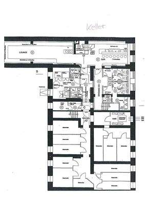
- Atmosphärische Bar-Lounge im Untergeschoss mit eigenem Zugang
-...
Preisinformation
Nettokaltmiete: 3.000,00 EUR
Weitere Informationen
Stichworte
Lagerfläche: 80,00 m², Gesamtfläche: 200,00 m², Ladenfläche: 200,00 m²
Anbieter der Immobilie
Online-ID: 2lmc55b
Referenznummer: GUB_GEW
Finde Angebote wie dieses
Hier geht es zu unserem Impressum, den Allgemeinen Geschäftsbedingungen, den Hinweisen zum Datenschutz und nutzungsbasierter Online-Werbung.