
Raiffeisenbank Wesermarsch-Süd eG
Herr Thomas Mücke
004 ···
Nr. anzeigenPreise & Kosten
Provision für Käufer
Provisionsfrei für den Käufer
Lage
Die Lage - zentral und dennoch ruhig
Die Allerstrasse/Weserstrasse liegt in einem gewachsenen Wohngebiet in gefragter Lage. Hier profitieren Sie von kurzen Wegen ins Zentrum sowie zur Weser, einer hervorragenden Nahversorgung und einer ruhigen, nachbarschaftlichen Atmosphäre.
- Nur wenige Gehminuten zu...
Die Wohnung
Wohnungslage
Erdgeschoss
Wohnanlage
Energie & Heizung
Warum sehe ich diese Anzeige? – Du siehst diese Anzeige basierend auf Ihrer Navigation auf unserer Website und den Suchkriterien, die du verwendet hast.
Energieausweistyp
Bedarfsausweis
Gebäudetyp
Wohngebäude
Baujahr laut Energieausweis
2025
Wesentliche Energieträger
LUFTWP
Gültigkeit
bis 01.07.2035
Effizienzklasse
A+
Endenergiebedarf
11,50 kWh/(m²·a)
Weitere Energiedaten
Heizungsart
Fußbodenheizung, Luft-/Wasser-Wärmepumpe
Details
Objektbeschreibung
***Provisionsfrei für den Käufer***
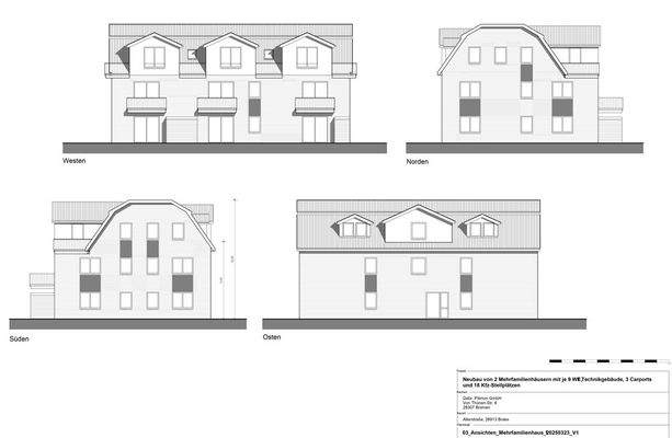
Modernes Wohnen in Brake - Neubau mit 9 exklusiven Wohneinheiten in gesuchter Lage
Allerstrasse
Inmitten der charmanten Weserstadt Brake entsteht ein hochwertiger Neubau mit insgesamt 9 modernen Wohneinheiten - maßgeschneidert für Menschen, die Komfort, Qualität und eine...
Ausstattung
Ausstattung - Komfort trifft Zukunftstechnologie
Dieses moderne Mehrfamilienhaus überzeugt nicht nur durch seine Architektur und Lage, sondern auch durch eine durchdachte, energieeffiziente und hochwertige Ausstattung. Hier wohnen Sie nachhaltig, komfortabel und zukunftssicher:
- Energieeffizienter Neubau...
Preisinformation
1 Stellplatz
Weitere Informationen
Sonstiges
Ideal für Braker, die sich verändern möchten
Gerade für langjährige Braker, die sich wohnlich verkleinern oder auf eine moderne, barrierearme Wohnung umsteigen möchten, bietet dieses Neubauprojekt eine ideale Lösung. Statt aufwendiger Gartenpflege und Treppensteigen im alten Eigenheim erwartet Sie...
Anbieter der Immobilie
Online-ID: 2lmkq5m
Referenznummer: 017rbws605
Finde Angebote wie dieses
Hier geht es zu unserem Impressum, den Allgemeinen Geschäftsbedingungen, den Hinweisen zum Datenschutz und nutzungsbasierter Online-Werbung.