

VR Bank Heilbronn Schwäbisch Hall eG
Frau Anja Dautel
071 ···
Nr. anzeigenPreise & Kosten
zzgl. Nebenkosten
Kaution
6.480,00 3 Monatsmieten
Provision für Mieter
3,57 Monatsmieten inkl. MwSt.
Warum sehe ich diese Anzeige? – Du siehst diese Anzeige basierend auf Ihrer Navigation auf unserer Website und den Suchkriterien, die du verwendet hast.
Lage
Die am Neckar gelegene Universitätsstadt Heilbronn hat Ende 2022 erstmalig die Marke von 130.000 Einwohnern überschritten. Somit ist sie nach Stuttgart nun zweitgrößte Stadt Württembergs und Oberzentrum der Region Heilbronn-Franken. Mit dem siebtgrößten Binnenhafen Deutschlands ist Heilbronn ein wichtiger Industrie- und...
Büro-/Praxisfläche
Kategorie
Bürofläche
Baujahr
1960
Geschoss
1. Geschoss
Energie & Heizung
Warum sehe ich diese Anzeige? – Du siehst diese Anzeige basierend auf Ihrer Navigation auf unserer Website und den Suchkriterien, die du verwendet hast.
Wärme
Strom
Energieausweistyp
Bedarfsausweis
Gebäudetyp
Nicht-Wohngebäude
Baujahr laut Energieausweis
1960
Wesentliche Energieträger
GAS
Gültigkeit
bis 22.05.2028
Endenergiebedarf (Wärme)
162,00 kWh/(m²·a)
Endenergiebedarf (Strom)
48,00 kWh/(m²·a)
Weitere Energiedaten
Energieträger
Fernwärme
Details
Objektbeschreibung
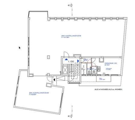
Bei der zur Vermietung kommenden Fläche handelt es sich um das 1. Obergeschoss eines Wohn- und Geschäftshauses in bester Innenstadtlage (Fußgängerzone) von Heilbronn. Die Etage hat eine Deckenhöhe von knapp 3 Metern und befindet sich derzeit im Rohbauzustand. Sie kann in Absprache nach Mieterwünschen ausgebaut werden. Durch...
Weitere Informationen
Stichworte
Gesamtfläche: 180,00 m²
Anbieter der Immobilie

Online-ID: 2lmlz5c
Referenznummer: 17770
Finde Angebote wie dieses
Hier geht es zu unserem Impressum, den Allgemeinen Geschäftsbedingungen, den Hinweisen zum Datenschutz und nutzungsbasierter Online-Werbung.