
Realitäten Verkehrs-Gesellschaft m.b.H.
Herr/Frau Bernhard Stoff
004 ···
Nr. anzeigenPreise & Kosten
Provision für Käufer
3% des Kaufpreises zzgl. 20% USt.
Lage
Willkommen in dieser traumhaften Dachgeschosswohnung in der Kaiserstraße, 1070 Wien! Die Lage vereint urbanes Leben mit hervorragender Infrastruktur. Nur wenige Schritte von der pulsierenden Mariahilferstraße und der Stadthalle entfernt, profitieren Sie von einer Vielzahl an Geschäften, Cafés und Freizeitmöglichkeiten. Ärzte...
Die Wohnung
Wohnungslage
Dachgeschoss
Bezug
sofort
Wohnanlage
Energie & Heizung
Warum sehe ich diese Anzeige? – Du siehst diese Anzeige basierend auf Ihrer Navigation auf unserer Website und den Suchkriterien, die du verwendet hast.
Heizwärmebedarf (HWB)
90,33 kWh/(m²·a)
Weitere Energiedaten
Energieträger
Gas
Heizungsart
Etagenheizung, offener Kamin
Details
Objektbeschreibung
Willkommen in Ihrem zukünftigen Traumdomizil - einer einzigartigen Dachgeschosswohnung im Herzen von 1070 Wien. Diese großzügige Immobilie bietet Ihnen die Möglichkeit, Ihre Wohnträume zu verwirklichen und Ihre persönliche Handschrift in ein sanierungsbedürftiges Juwel einfließen zu lassen.
Mit einer beeindruckenden...
Weitere Informationen
Stichworte
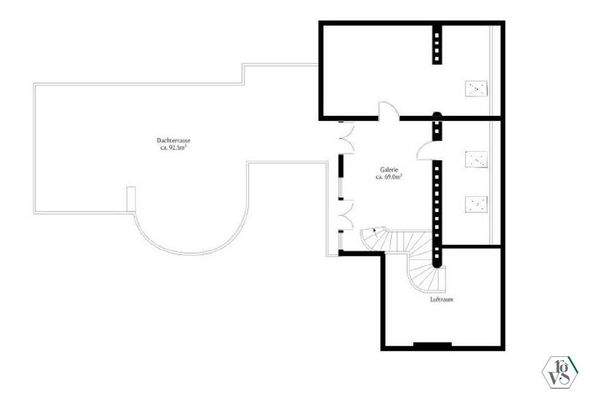
Anzahl der Badezimmer: 2, Anzahl der separaten WCs: 2, Anzahl Terrassen: 1, Balkon-Terrassen-Fläche: 91,20 m², Kellerfläche: 4,50 m², Bundesland: Wien, Wohnungsnr.: 10
Anbieter der Immobilie
Realitäten Verkehrs-Gesellschaft m.b.H.
Wollzeile 9/2/33, 1010 WIEN
Online-ID: 2lmm85f
Referenznummer: OBGC202506251220485274604c473b1
Finde Angebote wie dieses
Günstige Immobilienfinanzierung einfach online berechnen
Persönliches Angebot berechnenWarum sehe ich diese Werbung? – Du siehst diese Werbung basierend auf Deiner Navigation auf unserer Website und der von Dir verwendeten Suchkriterien.
Diese Werbung wird bezahlt von durchblicker
Werbung melden
Hier geht es zu unserem Impressum, den Allgemeinen Geschäftsbedingungen, den Hinweisen zum Datenschutz und nutzungsbasierter Online-Werbung.