
FALC Immobilien GmbH & Co. KG
Frau Leonie Laarmann
+49 ···
Nr. anzeigenPreise & Kosten
Provision für Käufer
provisionsfrei
Lage
Das freistehende Haus befindet sich in der charmanten Stadt Ozankoy auf Zypern. Die Immobilie mit der Hausnummer 2 liegt in einer ruhigen Wohngegend und ist ideal für Familien geeignet.
Die Lage des Hauses zeichnet sich durch ihre Nähe zum Stadtzentrum aus, das nur 1 Kilometer entfernt ist. Hier finden Sie eine...
Das Haus
Kategorie
Einfamilienhaus
Baujahr
2013
Bezug
sofort
Energie & Heizung
Warum sehe ich diese Anzeige? – Du siehst diese Anzeige basierend auf Ihrer Navigation auf unserer Website und den Suchkriterien, die du verwendet hast.
Energieausweis: für diesen Gebäudetyp nicht notwendig
Weitere Energiedaten
Energieträger
Elektro
Heizungsart
offener Kamin, Zentralheizung
Details
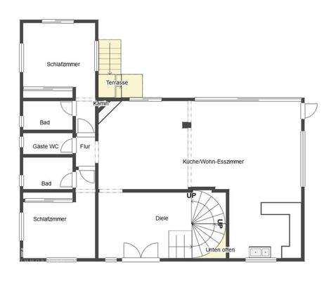
Objektbeschreibung
Zum Verkauf steht eine wunderschöne Villa in Ozankoy, Kyrenia. Das im Jahr 2013 erbaute Haus befindet sich in einem sehr guten Zustand, da es erst kürzlich renoviert wurde. Die finalen Arbeiten werden bis zur Übergabe fertiggestellt. Die Immobilie erstreckt sich über drei Etagen und bietet eine großzügige Wohnfläche von ca...
Ausstattung
- Einbauküche
- Kamin
- Klimatisiert
- Terrasse
- Balkon
- Swimmingpool
- Zentralheizung
- Strom als Befeuerung
- Mediterraner Baustil
- 2 PKW Stellplätze
- Barbecue Zone im Garten
- Kellergeschoss mit Zugang über die Garage
- Weitere Informationen auf Anfrage
Preisinformation
2 Stellplätze
Weitere Informationen
Sonstiges
Bitte beachten Sie, dass kein Energieausweis vorhanden ist, da es keine Pflicht zur Erstellung gibt. Die genaue Lage und weitere Details zur Immobilie können Sie gerne bei uns erfragen. Wir stehen Ihnen jederzeit gerne zur Verfügung und freuen uns auf Ihre Anfrage. Die Objektbeschreibung beruht ganz oder zum Teil...
Dokumente
Anbieter der Immobilie
Online-ID: 2lmr55d
Referenznummer: FALC-AnKu-40690
Finde Angebote wie dieses
Hier geht es zu unserem Impressum, den Allgemeinen Geschäftsbedingungen, den Hinweisen zum Datenschutz und nutzungsbasierter Online-Werbung.