
Immobilien Nadler
Herr Jochen Nadler
091 ···
Nr. anzeigenPreise & Kosten
Kaution
2400
Warum sehe ich diese Anzeige? – Du siehst diese Anzeige basierend auf Ihrer Navigation auf unserer Website und den Suchkriterien, die du verwendet hast.
Lage
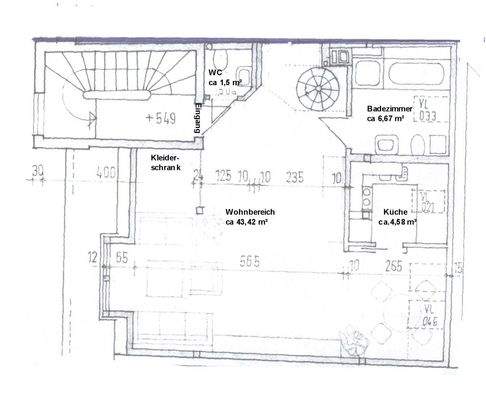
Die Maisonette-Wohnung befindet sich in einem Wohn-Geschäftshaus im 2.OG und DG von Herzogenaurach-Innenstadt.
Die Wohnung
Kategorie
Maisonette
Wohnungslage
Dachgeschoss
Bezug
01.01.2026
Energie & Heizung
Warum sehe ich diese Anzeige? – Du siehst diese Anzeige basierend auf Ihrer Navigation auf unserer Website und den Suchkriterien, die du verwendet hast.
Energieausweistyp
Verbrauchsausweis
Gebäudetyp
Wohngebäude
Baujahr laut Energieausweis
1904
Wesentliche Energieträger
Gas
Gültigkeit
21.07.2025 bis 20.07.2035
Effizienzklasse
B
Endenergieverbrauch
51,80 kWh/(m²·a)
Weitere Energiedaten
Energieträger
Gas
Heizungsart
Zentralheizung
Details
Ausstattung
2.Obergeschoss:
Wohn-/Essbereich
begehbarer Kleiderschrank
hell geflieste Küche mit Einbauküche
hell gefliestes Badezimmer
Gäste-WC
Dachgeschoss:
Das großzügige Studiozimmer erreicht man über eine moderne Wendeltreppe - im gesamten Studiobereich befinden sich exklusive Einbaumöbel...
Weitere Informationen
Heizungsart
Gaszentralheizung
beziehbar
01. Januar 2026
Allgem.Geschäftsbed.
Unsere nachstehenden Geschäftsbedingungen werden zusammen mit der Objektbeschreibung Bestandteil der beiderseitigen Vereinbarungen
1. Wir versichern, dass wir vom Eigentümer oder einem berechtigten Dritten befugt sind...
Anbieter der Immobilie
Online-ID: 2lmtv5m
Referenznummer: WO 2693
Finde Angebote wie dieses
Hier geht es zu unserem Impressum, den Allgemeinen Geschäftsbedingungen, den Hinweisen zum Datenschutz und nutzungsbasierter Online-Werbung.