

DAHLER Potsdam | Berlin-Wannsee | Kleinmachnow
Herr Kevin Manhardt
033 ···
Nr. anzeigenPreise & Kosten
Provision für Käufer
3.57% inkl. 19 % MwSt. bezogen auf den beurkundeten Kaufpreis
Lage
Welcome to Jägervorstadt: a district with incomparable charm
In a historical and cultural context, Jägervorstadt stands out as one of the most sought-after residential areas in Potsdam. Here, stately villas lend the district an incomparable charm. Weinbergstraße and Gregor-Mendel-Straße in particular, with remarkable...
Die Wohnung
Kategorie
Maisonette
Wohnungslage
3. Geschoss
Wohnanlage
Energie & Heizung
Warum sehe ich diese Anzeige? – Du siehst diese Anzeige basierend auf Ihrer Navigation auf unserer Website und den Suchkriterien, die du verwendet hast.
Energieausweistyp
Verbrauchsausweis
Gebäudetyp
Wohngebäude
Baujahr laut Energieausweis
1880
Wesentliche Energieträger
GAS
Gültigkeit
bis 04.09.2028
Effizienzklasse
C
Endenergieverbrauch
93,00 kWh/(m²·a)
Weitere Energiedaten
Energieträger
Gas
Heizungsart
Zentralheizung
Details
Objektbeschreibung
The apartment on offer here is located in the high-quality Weinbergstraße, which takes its name from the nearby Winzerberg. The street is characterized by its narrow development of mansion-like town houses. The stately apartment buildings are ornately designed. For example, you will find triangular gables on the second floor...
Ausstattung
. Representative residential building from 1880
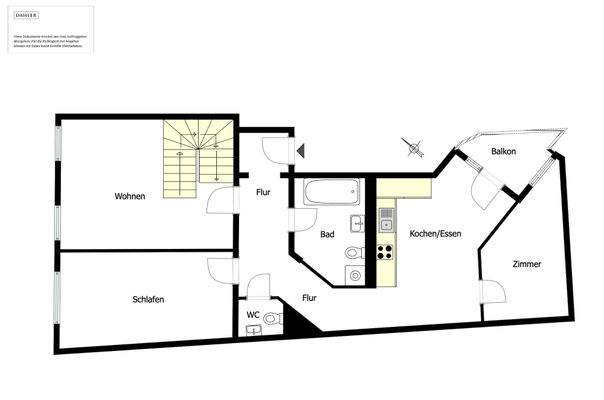
. Quiet apartment on the 3rd floor and attic with approx. 134 m² living space
. 5.5 rooms, including two spacious living areas
. 3.5 bedrooms
. One balcony and one roof terrace, of which the roof terrace faces south
. Fitted kitchen
. Two bathrooms with shower...
Preisinformation
1 Stellplatz
Weitere Informationen
Sonstiges
Your values are in the best hands with us
DAHLER specializes in the brokerage of high-quality residential properties in prime locations. Our company has been run by Kirsten and Björn Dahler for over 30 years and sets standards in the industry with its innovative strength and quality of service. Our more...
Anbieter der Immobilie

Online-ID: 2lmuw5n
Referenznummer: D-POT8255-1-ENG
Finde Angebote wie dieses
Hier geht es zu unserem Impressum, den Allgemeinen Geschäftsbedingungen, den Hinweisen zum Datenschutz und nutzungsbasierter Online-Werbung.