

Zieglmeier Immobilien OHG
Frau Elena Zieglmeier
+49 ···
Nr. anzeigenPreise & Kosten
Kaution
14.458,50
Provision für Mieter
2,38 MM inkl. MwSt. inkl. MwSt.
Nach Abschluss eines rechtswirksamen Mietvertrages ist vom Mieter eine Provision von 2,38 Netto-Monatsmieten inkl. MwSt. an den Makler zu bezahlen.
Warum sehe ich diese Anzeige? – Du siehst diese Anzeige basierend auf Ihrer Navigation auf unserer Website und den Suchkriterien, die du verwendet hast.
Lage
Die Ladenfläche befindet sich direkt in der Fußgängerzone von Ingolstadt. Die Lage zeichnet sich besonders durch den regen Publikumsverkehr aus (1A Lage).
Die Ladenfläche
Kategorie
Verkaufsfläche
Baujahr
1954
Bezug
sofort
Energie & Heizung
Warum sehe ich diese Anzeige? – Du siehst diese Anzeige basierend auf Ihrer Navigation auf unserer Website und den Suchkriterien, die du verwendet hast.
Wärme
Energieausweistyp
Verbrauchsausweis
Gebäudetyp
Nicht-Wohngebäude
Baujahr laut Energieausweis
1954
Wesentliche Energieträger
GAS
Gültigkeit
bis 12.01.2030
Endenergieverbrauch (Wärme)
132,20 kWh/(m²·a)
Details
Objektbeschreibung
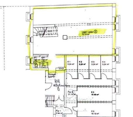
Die Ladenfläche hat eine Verkaufsfläche von ca. 150 m². Die zu vermietende Gewerbefläche bietet zudem Lagerflächen von ca. 72 m² und weitere Nebenflächen mit ca. 7 m² im Untergeschoss. Das Haus wird aktuell komplett renoviert. Ausstattungswünsche des Mieters können noch berücksichtigt werden.
Eine großzügige...
Preisinformation
Nettokaltmiete: 3.600,00 EUR
Weitere Informationen
Stichworte
Lagerfläche: 72,13 m², Gesamtfläche: 228,86 m²
Anbieter der Immobilie

Online-ID: 2lmx85g
Referenznummer: vmg777
Finde Angebote wie dieses
Hier geht es zu unserem Impressum, den Allgemeinen Geschäftsbedingungen, den Hinweisen zum Datenschutz und nutzungsbasierter Online-Werbung.