
REUTER IMMOBILIEN
040 ···
Nr. anzeigenPreise & Kosten
Provision für Mieter
provisionsfrei
Warum sehe ich diese Anzeige? – Du siehst diese Anzeige basierend auf Ihrer Navigation auf unserer Website und den Suchkriterien, die du verwendet hast.
Lage
Die angebotene Gewerbefläche befindet sich im "SUMATRAKONTOR" in einer der gefragtesten Lagen der Hafencity.
In wenigen Gehminuten erreichen Sie die U-Bahn-Station "Überseequartier", die eine schnelle und bequeme Verbindung zur Innenstadt und zum Hamburger Hauptbahnhof gewährleistet. Darüber hinaus ist die Autobahn...
Büro-/Praxisfläche
Kategorie
Bürofläche
Bezug
sofort
Geschoss
2. Geschoss
Details
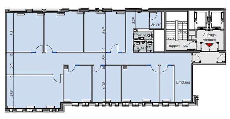
Objektbeschreibung
Die zur Vermietung stehende Bürofläche befindet sich im 2. Obergeschoss des renommierten "SUMATRAKONTORS" und umfasst eine Gesamtfläche von ca. 310 m².
Bereits beim Betreten des Gebäudes beeindruckt das rund 36 m hohe, lichtdurchflutete Glasfoyer. Die Büroeinheit ist sowohl über das zentrale Treppenhaus als auch bequem...
Ausstattung
- Flexible Raumaufteilung mit Möglichkeiten für Einzel- und Teambüros
- Lichtdurchflutete Arbeitsplätze dank bodentiefer Panoramafenster
- Weitreichender Ausblick über die Hafencity bis zur Elbe
- Effiziente Betonkernaktivierung zur Kühlung
- Elektrisch gesteuerter, außenliegender Sonnenschutz
- Teilweise...
Weitere Informationen
Sonstiges
Alle Angaben sind ohne Gewähr und basieren ausschließlich auf Informationen Dritter. Wir schließen jegliche Gewähr und Haftung für die Vollständigkeit, Richtigkeit und Aktualität dieser Angaben aus. Irrtum und Zwischenverkauf bleiben vorbehalten.
Sollte das von uns nachgewiesene Objekt bereits bekannt sein...
Anbieter der Immobilie
Online-ID: 2lmy75j
Referenznummer: Objekt-ID1464
Finde Angebote wie dieses
Hier geht es zu unserem Impressum, den Allgemeinen Geschäftsbedingungen, den Hinweisen zum Datenschutz und nutzungsbasierter Online-Werbung.