OstInvest Liegenschaftsvertriebs & Betreuungsgesellschaft mbH

Herr Thomas Willig

Tolle Lage! Schönes Einfamilienhaus mit wunderschönen Garten und Ausblick

€ 340.000
Kaufpreis
100 m²
Wohnfläche ca.
4
Zimmer
990 m²
Grundstücksfl. ca.

Der Anbieter dieses Objekts hat gegenüber der AVIV Germany GmbH als Betreiber dieses Online-Marktplatzes erklärt, nicht als Unternehmer im Sinne des § 1 KSchG zu handeln. Die im Verbraucherschutzrecht der Union verankerten Verbraucherrechte (insbesondere Informationspflichten und Rücktritts- bzw. Widerrufsrechte) finden auf den Vertrag zwischen dem Anbieter des Objekts und Ihnen (dem Interessenten) keine Anwendung.

Gewerblicher Anbieter

Der Anbieter dieses Objekts hat gegenüber der AVIV Germany GmbH als Betreiber dieses Online-Marktplatzes erklärt, als Unternehmer im Sinne des § 1 KSchG zu handeln.

AdresseStraße nicht freigegeben
08056 Zwickau 
(Oberhohndorf)
Auf Karte ansehen

Preise & Kosten

Kaufpreis € 340.000

Provision für Käufer

3 % zzgl. MwSt.
Alle Angaben nach bestem Wissen. Irrtum und Zwischenverkauf vorbehalten. Weitere Informationen siehe Provisionshinweis.

Lage

Oberhohndorf liegt im südwestlichen Teil der Stadt und verbindet ruhiges Wohnen mit guter Infrastruktur. Der Stadtteil zeichnet sich durch gepflegte Wohngebiete, großzügige Grundstücke und eine idyllische Umgebung aus. Einkaufsmöglichkeiten, Schulen, Kindergärten und Ärzte sind in der Nähe, und die Anbindung an die A72 sowie...

Mehr anzeigen

Das Haus

Kategorie

Einfamilienhaus

Baujahr

1980

Bezug

nach Vereinbarung

  • Zustand: gepflegt
  • voll unterkellert
  • Garten, Balkon
  • 1 Stellplatz: Garage
  • Bad mit Fenster, Wanne und Dusche
  • Böden: Fliesenboden, Laminat, Parkett

Energie & Heizung

Weitere Energiedaten

Energieträger

Gas

Details

Objektbeschreibung

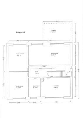
Dieses charmante Einfamilienhaus befindet sich in einer ruhigen Wohngegend von Zwickau und bietet auf 100 m² Wohnfläche ausreichend Platz für eine kleine Familie. Die Immobilie verfügt über insgesamt 4 Zimmer, davon ein geräumiges Schlafzimmer, 1 Kinderzimmer und ein Wohnzimmer an dem eine großzügig angelegte Terrasse...

Mehr anzeigen

Preisinformation

1 Garagenstellplatz

Weitere Informationen

Provisionshinweis
3 % zzgl. MwSt.
Alle Angaben nach bestem Wissen. Irrtum und Zwischenverkauf vorbehalten. Der Käufer zahlt im Erfolgsfall an die Firma OstInvest Immobilien GmbH eine Käufer-Maklerprovision in Höhe von 3,57 % inkl. 19% MwSt.. Die Provision errechnet sich aus dem beurkundeten Kaufpreis. Dieses Exposé ist...

Mehr anzeigen

Anbieter der Immobilie

user

Herr Thomas Willig

Dein Ansprechpartner

Anbieter-Website Anbieter-Profil Anbieter-Impressum

Online-ID: 2ln4n5t

Referenznummer: 2025K101

Finde Angebote wie dieses

imageimageimage

Hier geht es zu unserem Impressum, den Allgemeinen Geschäftsbedingungen, den Hinweisen zum Datenschutz und nutzungsbasierter Online-Werbung.