
Hartmannsdorf Immobilien UG (haftungsbeschränkt)
Herr Ferry Schubert
004 ···
Nr. anzeigenPreise & Kosten
Provision für Käufer
3,57% zzgl. MwSt.
Lage
Top-Standort für Ihr Unternehmen - Industriehalle mit Freifläche in der renommierten Schönherrfabrik, Chemnitz
Diese Industriehalle befindet sich auf einem historischen und gleichzeitig modernen Gelände in Chemnitz, einer Stadt, die als aufstrebendes wirtschaftliches Zentrum im Herzen Sachsens bekannt ist. Chemnitz...
Die Industriefläche
Kategorie
Lagerhalle
Bezug
31.11.2024
Details
Objektbeschreibung
Gewerbehalle mit vielseitigen Potenzialen in der aufstrebenden Stadt Chemnitz
Inmitten der dynamisch wachsenden Stadt Chemnitz erwartet Sie eine herausragende Investitionsmöglichkeit: Eine gepflegte und massiv erbaute Industriehalle im renommierten Gewerbegebiet der Schönherrfabrik. Diese Immobilie bietet nicht nur...
Ausstattung
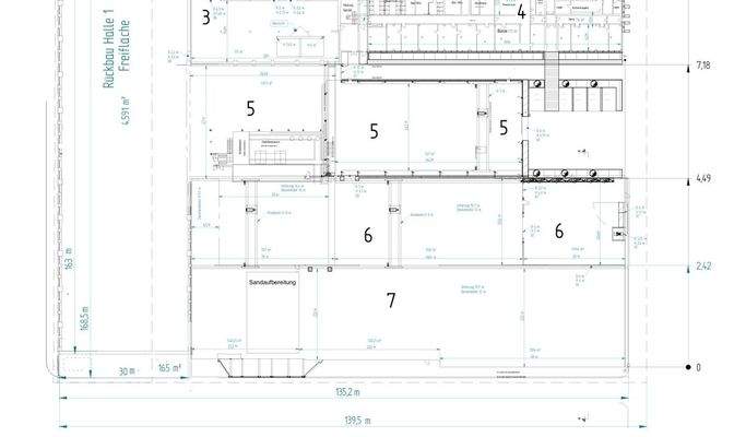
Zusammengefasste Flächenaufteilung:
Produktionsfläche: 13.912 m²
Lagerfläche: 3.037 m²
Büro- und Verwaltungsfläche: 848 m²
Sonstige Nutzflächen (Kantine, Technik): 915 m²
Freifläche: 4.591 m²
6 Krananlagen zwischen 3,2t und 10t Tragkraft
Weitere Informationen
Stichworte
Gesamtfläche: 22.733,40 m², Bürofläche: 848,00 m², Bundesland: Sachsen
Anbieter der Immobilie
Hartmannsdorf Immobilien UG (haftungsbeschränkt)
Weststraße 5, 09232 Hartmannsdorf
Online-ID: 2ln825v
Referenznummer: MM-008392
Finde Angebote wie dieses
Hier geht es zu unserem Impressum, den Allgemeinen Geschäftsbedingungen, den Hinweisen zum Datenschutz und nutzungsbasierter Online-Werbung.