
VON POLL IMMOBILIEN Nordhausen - Ines Baumbach-Weber
Frau Ines Baumbach-Weber
004 ···
Nr. anzeigenPreise & Kosten
Provision für Käufer
Käuferprovision beträgt 3,57 % (inkl. MwSt.) des beurkundeten Kaufpreises
Abschreibung/Anlage
Denkmalschutz-Afa
Lage
Nordhausen, die nördlichste Kreisstadt im Freistaat Thüringen ist nicht nur weit weniger thüringisch als andere Städte im Land, sie war lange Zeit ihres Bestehens, ab 1220 genau 582 lange Jahre freie Reichsstadt und als Zeichen dafür steht unser Roland. Gegründet 927 und damit fast 1.100 Jahre alt, wurde Nordhausen im Jahr...
Das Haus
Kategorie
Villa
Baujahr
1908
Energie & Heizung
Warum sehe ich diese Anzeige? – Du siehst diese Anzeige basierend auf Ihrer Navigation auf unserer Website und den Suchkriterien, die du verwendet hast.
Energieausweis: für diesen Gebäudetyp nicht notwendig
Weitere Energiedaten
Haustyp
Massivhaus
Energieträger
Gas
Heizungsart
Zentralheizung
Details
Objektbeschreibung
Eine der repräsentativsten Jugendstilbauwerke Nordhausens, die ehemalige Fabrikantenvilla der Brennerei Seidel möchte mit neuem Leben gefüllt werden
Dieses beeindruckende Gebäude wurde 1907/08 von dem Brennereibesitzer Josef Seidel erbaut. Den Entwurf für die Villa lieferten die Architekten Mencke & Jürgens...
Ausstattung
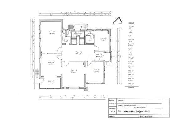
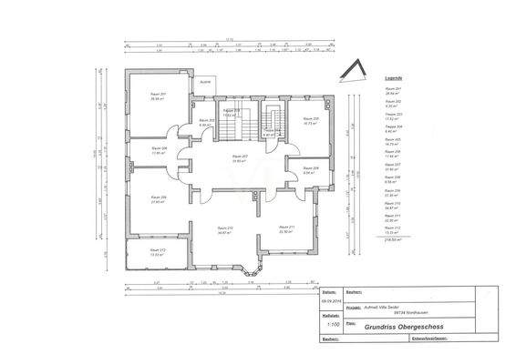
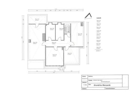
DIE VILLA - BAUZUSTAND & DETAIL
Art des Gebäudes: Fabrikantenvilla mit KG, EG, OG, DG und Dachraum
Grundrissgestaltung: zweckmäßig, großzügig
Baujahr: Ausführung und Ausstattung (teilweise) ca. 1907/1908
Konstruktionsart:bauzeittypische Konstruktion, Keller, EG, OG massiv, DG überwiegend...
Preisinformation
10 Stellplätze
Weitere Informationen
Sonstiges
GELDWÄSCHE: Als Immobilienmaklerunternehmen ist die von Poll Immobilien GmbH nach § 2 Abs. 1 Nr. 14 und § 11 Abs. 1, 2 Geldwäschegesetz (GwG) dazu verpflichtet, bei der Begründung einer Geschäftsbeziehung die Identität des Vertragspartners festzustellen und zu überprüfen, bzw. sobald ein ernsthaftes Interesse an...
Anbieter der Immobilie
VON POLL IMMOBILIEN Nordhausen - Ines Baumbach-Weber
Bahnhofstraße 10a, 99734 Nordhausen
Online-ID: 2ln8b5m
Referenznummer: 25 461 016
Finde Angebote wie dieses
Hier geht es zu unserem Impressum, den Allgemeinen Geschäftsbedingungen, den Hinweisen zum Datenschutz und nutzungsbasierter Online-Werbung.