

Città Ideale & Prestige S.r.l.
Herr Fabrizio Paganelli
+39 ···
Nr. anzeigenPreise & Kosten
Provision für Käufer
Bitte beachte, das Angebot beinhaltet bei Vertragsabschluss die Zahlung einer Provision. Weitere Informationen erhältst Du vom Anbieter.
Die Wohnung
Kategorie
Maisonette
Wohnungslage
4. Geschoss (Dachgeschoss)
Derzeitige Nutzung
frei
Wohnanlage
Energie & Heizung
Warum sehe ich diese Anzeige? – Du siehst diese Anzeige basierend auf Ihrer Navigation auf unserer Website und den Suchkriterien, die du verwendet hast.
Energieausweistyp
Bedarfsausweis
Gebäudetyp
Wohngebäude
Effizienzklasse
B
Endenergiebedarf
57,09 kWh/(m²·a)
Weitere Energiedaten
Energieträger
Gas
Heizungsart
Fußbodenheizung, Zentralheizung
Details
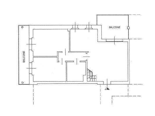
Objektbeschreibung
Im Herzen von Intra, nur wenige Schritte von allen wichtigen Dienstleistungen entfernt, bieten wir zum Verkauf eine Wohnung im obersten Stockwerk eines eleganten, kürzlich erbauten Gebäudes mit Aufzug an.
Die Immobilie erstreckt sich über zwei Ebenen und überzeugt durch ihre hervorragende Südwest-Ausrichtung, die den...
Weitere Informationen
Stichworte
Zustand: saniert, gepflegt
Versorgung: Städtische Wasserversorgung, Städtische Stromversorgung
Anbieter der Immobilie
Città Ideale & Prestige S.r.l.
Corso San Babila, 20122 Milano

Online-ID: 2ln8x5v
Referenznummer: AA.4440-P43
Finde Angebote wie dieses
Hier geht es zu unserem Impressum, den Allgemeinen Geschäftsbedingungen, den Hinweisen zum Datenschutz und nutzungsbasierter Online-Werbung.