
GGG - Wohnen in Chemnitz
Firma GGG - Wohnen in Chemnitz
037 ···
Nr. anzeigenPreise & Kosten
Kaution
2.175,00
Provision für Mieter
Bitte beachte, das Angebot kann bei Vertragsabschluss die Zahlung einer Provision beinhalten. Weitere Informationen erhältst Du vom Anbieter.
Warum sehe ich diese Anzeige? – Du siehst diese Anzeige basierend auf Ihrer Navigation auf unserer Website und den Suchkriterien, die du verwendet hast.
Lage
Direkt hinter dem Technischen Rathaus befindet das Wohn- und Geschäftsobjekt Dresdner Str. 12-18.
Die Gewerbefläche liegt in einem verkehrsberuhigten Bereich mit weiteren gewerblich genutzten Erdgeschosseinheiten.
In unmittelbarer Nähe führt der Innenstadtring von Chemnitz entlang, welcher u.a. zum Hauptbahnhof...
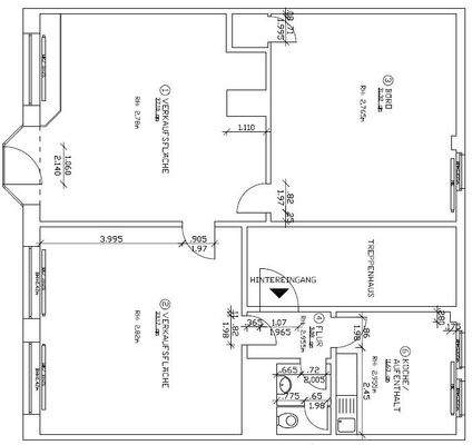
Büro-/Praxisfläche
Kategorie
Bürofläche
Baujahr
1991
Bezug
sofort
Geschoss
Erdgeschoss
Energie & Heizung
Warum sehe ich diese Anzeige? – Du siehst diese Anzeige basierend auf Ihrer Navigation auf unserer Website und den Suchkriterien, die du verwendet hast.
Wärme
Energieausweistyp
Verbrauchsausweis
Gebäudetyp
Nicht-Wohngebäude
Wesentliche Energieträger
FERN
Gültigkeit
10.02.2024 bis 01.02.2034
Endenergieverbrauch (Wärme)
68,00 kWh/(m²·a)
Weitere Energiedaten
Energieträger
Fernwärme
Details
Ausstattung
- Neubau, Baujahr 1990, saniert in 2018
- Objektzustand gepflegt
- ebenerdiger Zugang, barrierefrei, zusätzl. Nebenzugang über 8 Stufen imTreppenhaus
- Werbung: Schaufensterbeklebung
- Anschlüsse: Glasfaser
- Bodenbelag: PVC, WC: Fliesen
- Wandbelag: Raufasertapete, WC: Fliesen
- Decke: Rasterdecke mit...
Weitere Informationen
Stichworte
Wohnungsnr.: 10.13406.1.501, Zustand nach Vereinbarung
Dokumente
Anbieter der Immobilie
Online-ID: 2lnce5d
Referenznummer: 10.13406.1.501
Finde Angebote wie dieses
Hier geht es zu unserem Impressum, den Allgemeinen Geschäftsbedingungen, den Hinweisen zum Datenschutz und nutzungsbasierter Online-Werbung.