

BUERO.IMMOBILIEN Leipzig GmbH & Co. KG
Frau Kathrin Oldenburg
034 ···
Nr. anzeigenPreise & Kosten
Provision für Mieter
1,0 Nettomonatsmiete
Warum sehe ich diese Anzeige? – Du siehst diese Anzeige basierend auf Ihrer Navigation auf unserer Website und den Suchkriterien, die du verwendet hast.
Lage
Das kernsanierte Gründerzeithaus ist im Leipziger Musikviertel gelegen und bietet in zentraler, verkehrsgünstiger Lage von Leipzig einen idealen Standort für kleinere und mittlere Unternehmen. In direkter Nachbarschaft des Bundesverfassungsgerichts und südlich des Innenstadtrings gelegen, sind innerhalb weniger Minuten auch...
Büro-/Praxisfläche
Kategorie
Bürofläche
Details
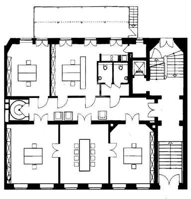
Objektbeschreibung
Die klassisch gestaltete Fassade ist ein Blickfang und schafft mit ihren großzügig angelegten Fenstern helle, lichtdurchflutete Räume. Die zum ruhigen Garten gelegene Terrasse verleiht dem Gebäude einen natürlichen Ruhepol und Rückzugsort. Die zur Vermietung stehende Bürofläche liegt im Hochpaterre des Gebäudes und wird über...
Weitere Informationen
Sonstiges
Der Mietpreis richtet sich nach Ausstattung, Lage im Gebäude und Vertragslaufzeit und liegt zwischen 14,00 EUR/ m² und 16,00 EUR/ m².
Flächenanmietung leicht gemacht?
Bitte sprechen Sie uns an, gern stellen wir Ihnen eine Auswahl geeigneter Büroflächenangebote zusammen. Für Fragen, ein...
Anbieter der Immobilie
BUERO.IMMOBILIEN Leipzig GmbH & Co. KG
Markt 9, 04109 Leipzig

Online-ID: 2lncu5s
Referenznummer: 972/E1/Eh1
Finde Angebote wie dieses
Hier geht es zu unserem Impressum, den Allgemeinen Geschäftsbedingungen, den Hinweisen zum Datenschutz und nutzungsbasierter Online-Werbung.