
CAPERA Immobilien Service GmbH
Christopher Karakut
Kontaktiere den Anbieter schriftlich, es ist keine Telefonnummer hinterlegt.
Preise & Kosten
Kaution
2 Kaltmieten
Warum sehe ich diese Anzeige? – Du siehst diese Anzeige basierend auf Ihrer Navigation auf unserer Website und den Suchkriterien, die du verwendet hast.
Lage
Im Stuttgarter Großraum ist der Ortsteil Korntal-Münchingen gelegen und grenzt u.a. an den Ortsteilen Stuttgart-Zuffenhausen, Ludwigsburg, Dietzingen und Schwieberdignen an. Stuttgart bietet eine einzigartige Mischung aus Arbeitsmöglichkeiten, Freizeitaktivitäten und kulturellem Reichtum. Von renommierten Automobilherstellern...
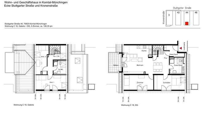
Die Wohnung
Wohnanlage
Energie & Heizung
Warum sehe ich diese Anzeige? – Du siehst diese Anzeige basierend auf Ihrer Navigation auf unserer Website und den Suchkriterien, die du verwendet hast.
Energieausweistyp
Bedarfsausweis
Gebäudetyp
Wohngebäude
Gültigkeit
seit 07.12.2022
Effizienzklasse
A+
Endenergiebedarf
26,50 kWh/(m²·a)
Weitere Energiedaten
Energieträger
Erdwärme
Heizungsart
Fußbodenheizung
Details
Objektbeschreibung
Der Neubau befindet sich in einem Wohn- & Geschäftsquartier in zentraler Lage von Korntal-Münchingen. Auf einem ca. 3.600 m² großen Areal sind im Frühjahr 2024 61 Wohneinheiten, eine Praxis sowie eine Einkaufsmöglichkeit entstanden.
Zwei Tiefgaragenebenen bieten Platz für den Großteil der PKW-Stellplätze. Einen...
Ausstattung
Die helle und großzügige 5-Zimmerwohnung verfügt über eine tolle Ausstattung. Die Wohnräume sowie der Eingangsbereich sind mit einem hochwertigen Parkettboden versehen. Der helle Wohnbereich verfügt über eine große Fensterfront. Der sonnige Balkon/Terrasse lädt zum Verweilen ein.
Der Eingangsbereich der Wohnung ist...
Weitere Informationen
Sonstiges
Wir freuen uns auf Sie! Bitte senden Sie uns eine E-Mail-Anfrage zu!
Gern vereinbaren wir einen Besichtigungstermin mit Ihnen.
Weitere interessante Angebote finden Sie unter www.capera-immobilien.de
Stichworte
Gesamtfläche: 128,00 m², Anzahl Balkone: 1
Sonstiges/Wohnen...
Dokumente
Anbieter der Immobilie
CAPERA Immobilien Service GmbH
Dornhofstr. 100, 63263 Neu-Isenburg
Christopher Karakut
Dein Ansprechpartner
Kontaktiere den Anbieter schriftlich, es ist keine Telefonnummer hinterlegt.
Online-ID: 2lnd65x
Referenznummer: 17447-209
Finde Angebote wie dieses
Hier geht es zu unserem Impressum, den Allgemeinen Geschäftsbedingungen, den Hinweisen zum Datenschutz und nutzungsbasierter Online-Werbung.