
Immobilien Günter GmbH
Gernot Günter
+49 ···
Nr. anzeigenPreise & Kosten
Provision für Mieter
2 Monatsmieten zzgl. MwSt.
Die Vermittlungsprovision beträgt für den Mieter 2 Monatsmieten zzgl. MwSt.
Warum sehe ich diese Anzeige? – Du siehst diese Anzeige basierend auf Ihrer Navigation auf unserer Website und den Suchkriterien, die du verwendet hast.
Lage
?? Lage - Ettlingen Innenstadt
Die Gewerbefläche liegt in einer besten Innenstadtlage von Ettlingen mitten in der stark frequentierten Fußgängerzone. Die Umgebung ist geprägt von zahlreichen Geschäften, Gastronomie und Dienstleistern sowie dem beliebten Wochenmarkt.
??? Fußgängerzone mit Boutiquen, Wochenmarkt...
Die Ladenfläche
Kategorie
Verkaufsfläche
Baujahr
1987
Bezug
nach Vereinbarung
Energie & Heizung
Warum sehe ich diese Anzeige? – Du siehst diese Anzeige basierend auf Ihrer Navigation auf unserer Website und den Suchkriterien, die du verwendet hast.
Wärme
Strom
Energieausweistyp
Verbrauchsausweis
Gebäudetyp
Nicht-Wohngebäude
Wesentliche Energieträger
Gas
Gültigkeit
08.09.2025 bis 07.09.2035
Endenergieverbrauch (Wärme)
126,70 kWh/(m²·a) - Warmwasser enthalten
Endenergieverbrauch (Strom)
27,50 kWh/(m²·a) - Warmwasser enthalten
Weitere Energiedaten
Energieträger
Gas
Heizungsart
Etagenheizung
Details
Objektbeschreibung
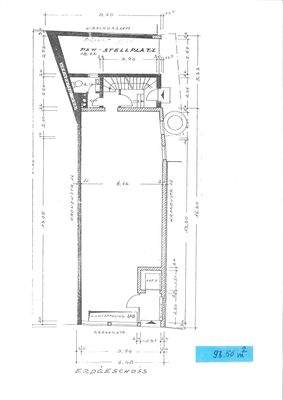
Dieses vielseitig nutzbare Ladengeschäft bietet rund 169 m² Gesamtfläche und befindet sich in einem gepflegten Geschäftshaus, das 1987/88 neu errichtet wurde.
Die Verkaufsräume verteilen sich auf ca. 93 m² im Erdgeschoss sowie weitere 76 m² im Untergeschoss. Die Gesamtfläche umfasst ebenfalls etwa 15 m² für Sozial- und...
Ausstattung
? Ausstattung & Highlights
? Helle und freundliche Verkaufsräume
? Großzügige Schaufensterfront (2-geteilt)
? Sozialräume im EG (Teeküche, WC etc.)
? Strapazierfähiger Laminatboden in Gewerbequalität im EG
? Heller Linoleumboden im UG
? Abgehängte Decke mit integrierter Beleuchtung &...
Weitere Informationen
Sonstiges
Diese Ladenfläche in zentraler Innenstadtlage bietet ideale Voraussetzungen für Verkauf, Dienstleitung und Repräsentanz.
Kontaktieren Sie uns noch heute für weitere Informationen sowie einen Besichtigungstermin!
?? info@immobilien-guenter.de, Gernot Günter, Immobilien Günter
?...
Anbieter der Immobilie
Online-ID: 2lnnl5x
Referenznummer: 1195
Finde Angebote wie dieses
Hier geht es zu unserem Impressum, den Allgemeinen Geschäftsbedingungen, den Hinweisen zum Datenschutz und nutzungsbasierter Online-Werbung.