

M Projekt GmbH & Co. KG
Herr Jens Ratjen
042 ···
Nr. anzeigenPreise & Kosten
Provision für Käufer
provisionsfrei
Lage
Die Liegenschaft befindet sich im Zentrum von Bremen-Blumenthal.
Das Objekt profitiert von einer zentralen Lage mit sehr guter Anbindung:
Bushaltestellen und Bahnhof sind fußläufig erreichbar
Einkaufsmöglichkeiten, Gastronomie und Dienstleister befinden sich im direkten Umfeld
Parkmöglichkeiten sind...
Büro-/Praxisfläche
Kategorie
Bürogebäude
Baujahr
1890
Derzeitige Nutzung
vermietet
Energie & Heizung
Warum sehe ich diese Anzeige? – Du siehst diese Anzeige basierend auf Ihrer Navigation auf unserer Website und den Suchkriterien, die du verwendet hast.
Energieausweis: für diesen Gebäudetyp nicht notwendig
Weitere Energiedaten
Energieträger
Gas
Details
Objektbeschreibung
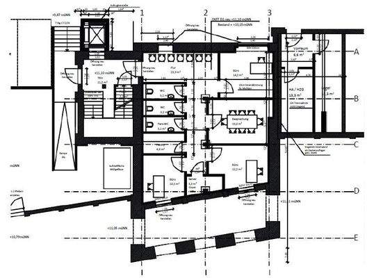
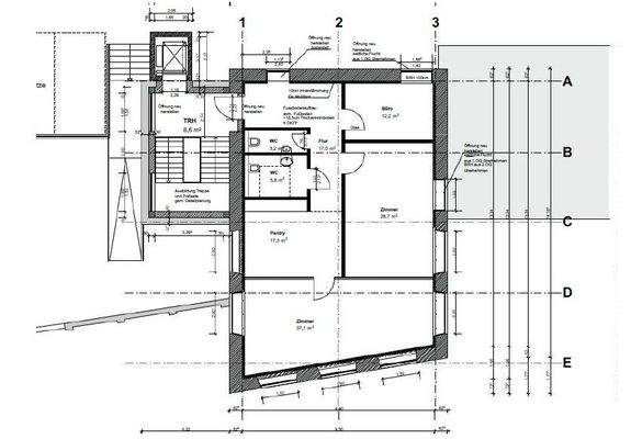
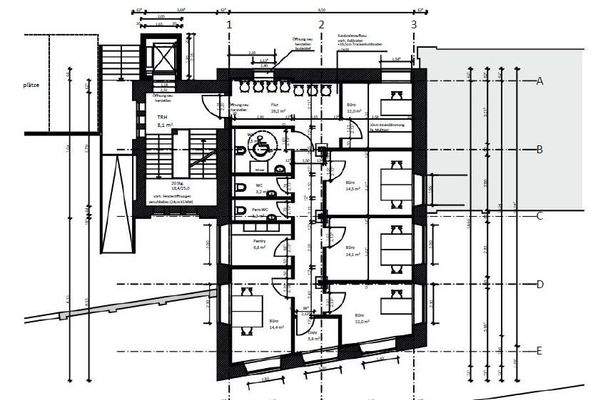
Zum Verkauf steht ein gepflegtes Gewerbeensemble mit insgesamt ca. 1.052 m² Mietfläche.
Die Immobilie, auch Arkadengebäude, genannt verteilt sich auf mehrere Gebäude (Gebäude 5, 7 und 12) und überzeugt durch eine solide Mieterstruktur mit bonitätsstarken Mietern wie dem Ortsamt Blumenthal, der Polizei Bremen, der AWO...
Weitere Informationen
Flächen und Mieten:
Gebäude 5
Halle 1: ca. 130 m²
Halle 2: ca. 83 m²
Halle 3: ca. 120 m²
Summe: ca. 333 m²
Gebäude 7
EG: ca. 145 m²
1.OG: ca. 215 m²
Summe: ca. 360 m²
Gebäude 12
EG: ca. 15 m²
EG: ca. 95,50 m²
1. OG: ca. 124 m²
2.OG: ca. 124 m²
Summe...
Anbieter der Immobilie

M Projekt GmbH & Co. KG

Online-ID: 2lnp25k
Referenznummer: LCHSTR99AB
Finde Angebote wie dieses
Hier geht es zu unserem Impressum, den Allgemeinen Geschäftsbedingungen, den Hinweisen zum Datenschutz und nutzungsbasierter Online-Werbung.