

Daniel Augustin Immobilien GmbH
Herr/Frau Daniel Augustin
081 ···
Nr. anzeigenPreise & Kosten
Provision für Käufer
3,57 % inkl. MwSt. des Kaufpreises, verdient und fällig mit Beurkundung des notariellen Kaufvertrages
Lage
Die Gemeinde Kottgeisering, im bayerischen Landkreis Fürstenfeldbruck
gelegen, besticht durch ihre idyllische Lage und die ländliche Ruhe, die sie
umgibt. Eingebettet in die wunderschöne Natur und das nahegelegene Fünf-
Seen-Land, bietet sie eine hohe Lebensqualität und ist besonders für Familien
und...
Das Haus
Geschosse
3 Geschosse
Baujahr
1978
Derzeitige Nutzung
frei
Energie & Heizung
Warum sehe ich diese Anzeige? – Du siehst diese Anzeige basierend auf Ihrer Navigation auf unserer Website und den Suchkriterien, die du verwendet hast.
Energieausweistyp
Verbrauchsausweis
Gebäudetyp
Wohngebäude
Wesentliche Energieträger
Gas
Effizienzklasse
E
Endenergieverbrauch
146,50 kWh/(m²·a) - Warmwasser enthalten
Weitere Energiedaten
Haustyp
Massivhaus
Energieträger
Gas
Heizungsart
Ofen, Zentralheizung
Details
Objektbeschreibung
Das Einfamilienhaus ist idyllisch gelegen und bietet eine perfekte Kombination aus Ruhe und Natur. Der uneinsehbare, liebevoll angelegte Garten lädt zum Entspannen und Verweilen ein und schafft eine private Oase abseits des Trubels. Hier können Sie die Seele baumeln lassen, umgeben von gepflegten Pflanzen und einer...
Ausstattung
Außenbereich
-Doppelgarage mit elektrischen Toren und Zugang zum Garten
-Elektrisches Hoftor
-Großzügige Terrasse, teils überdacht mit Markise und Freisitz
-Großes Gartenhaus mit eigener Terrasse
-Mähroboter
-Angelegter und (fast) uneinsehbarer Garten
Innen
Erdgeschoss
-Landhausdielen in Eiche...
Weitere Informationen
Stichworte
Sonstiges/Wohnen: Einliegerwohnung
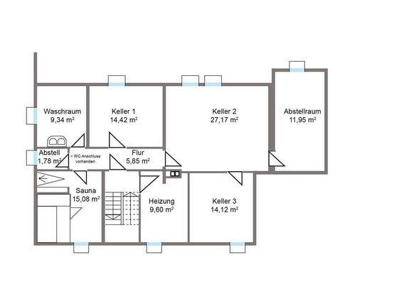
Sonstiges: Keller als Wohnraum nutzbar
Anbieter der Immobilie
Daniel Augustin Immobilien GmbH
Hauptstraße 8, 82284 Grafrath

Online-ID: 2lnqq5k
Finde Angebote wie dieses
Hier geht es zu unserem Impressum, den Allgemeinen Geschäftsbedingungen, den Hinweisen zum Datenschutz und nutzungsbasierter Online-Werbung.