

Vorteil Immobilien Stephan Manke
Herr Stephan Manke
050 ···
Nr. anzeigenPreise & Kosten
Kaution
2.550,00
Warum sehe ich diese Anzeige? – Du siehst diese Anzeige basierend auf Ihrer Navigation auf unserer Website und den Suchkriterien, die du verwendet hast.
Lage
Das Grundstück liegt mitten in der Innenstadt von Wunstorf und liegt nur ca. 100 Meter von der Fußgängerzone entfernt. Die Straße wurde in den vergangenen Jahren neu gestaltet.
Alle Einkaufsmöglichkeiten, Ärzte, Apotheken, Banken, Post, Kindergärten, Schulen, Restaurants und öffentliche Einrichtungen befinden sich in...
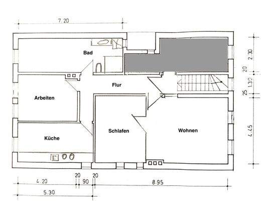
Die Wohnung
Wohnungslage
2. Geschoss
Bezug
01.01.2026
Wohnanlage
Energie & Heizung
Warum sehe ich diese Anzeige? – Du siehst diese Anzeige basierend auf Ihrer Navigation auf unserer Website und den Suchkriterien, die du verwendet hast.
Weitere Energiedaten
Energieträger
Gas
Heizungsart
Zentralheizung
Details
Objektbeschreibung
Die Wohnung befindet sich in einem älteren Gebäude mit Altbau-Charme, welches in den 90er Jahren kernsaniert und im Laufe der Zeit immer wieder modernisiert wurde. Ganz Frisch wurde die Außenfassade komplett gedämmt, das Dach erneuert und komplett gedämmt und auch eine neue Heizungsanlage eingebaut.
Für weitere...
Ausstattung
Bodenbelege:
Hochwertiger Parkettboden in der gesamten Wohnung
Türen:
Holz weiß
Fenster:
Kunststoff-Iso
Küche:
Hochwertige Einbauküche
Bad:
Mit Dusche (Glas-Duschabtrennung), mit Tageslicht
Stellplatz:
Direkt auf dem Grundstück möglich (60,-...
Preisinformation
1 Stellplatz, Miete: 60,00 EUR
Weitere Informationen
Sonstiges
Wenn Sie weitere Informationen wünschen, oder Sie sich die Wohnung gerne einmal anschauen möchten, dann nehmen Sie Kontakt mit uns auf.
Es gelten unsere AGB.
Die Angaben im Exposé erfolgten nach Auskunft des Eigentümers bzw. Auskunftsberechtigten. Für die Richtigkeit der Angaben übernehmen wir keine...
Anbieter der Immobilie
Vorteil Immobilien Stephan Manke
Bertolt-Brecht-Str. 38, 31515 Wunstorf

Online-ID: 2lnrl5t
Referenznummer: VI606
Finde Angebote wie dieses
Hier geht es zu unserem Impressum, den Allgemeinen Geschäftsbedingungen, den Hinweisen zum Datenschutz und nutzungsbasierter Online-Werbung.