
Immobilien & Finanzierung Markus Hoffmann
Herr Markus Hoffmann
017 ···
Nr. anzeigenPreise & Kosten
Provision für Käufer
provisionsfrei
Lage
Queichhambach ist ein Stadtteil und insgesamt einer von vier Ortsbezirken der im rheinland-pfälzischen Landkreis Südliche Weinstraße gelegenen Stadt Annweiler am Trifels.
Die Wohnung
Wohnungslage
1. Geschoss
Bezug
nach Vereinbarung
Derzeitige Nutzung
frei
Wohnanlage
Energie & Heizung
Warum sehe ich diese Anzeige? – Du siehst diese Anzeige basierend auf Ihrer Navigation auf unserer Website und den Suchkriterien, die du verwendet hast.
Energieausweistyp
Bedarfsausweis
Gebäudetyp
Wohngebäude
Baujahr laut Energieausweis
2021
Wesentliche Energieträger
Strom/Wärmepumpe
Effizienzklasse
A+
Endenergiebedarf
18,20 kWh/(m²·a)
Weitere Energiedaten
Heizungsart
Fußbodenheizung, Luft-/Wasser-Wärmepumpe
Details
Objektbeschreibung
Wohnen, wo andere Urlaub machen!
Diese großzügige, neuwertige 4,5-ZKB-Maisonette-Wohnung in einem 3-FH-Niedrigenergiehaus kann bald Ihr neues Zuhause werden.
Die Immobilie im Überblick:
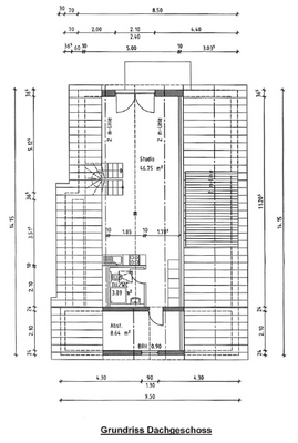
Über das Treppenhaus gelangen Sie in das Obergeschoss, in der sich die Wohnung befindet. Vom Flur/Eingangsbereich aus...
Ausstattung
- niedrige Energiekosten
- Fußbodenheizung
- 3-fach-Schallschutzfenster, teilweise mit elektrischen Rollläden
- hochwertige Ausstattung
- barrierefreie Dusche
- Außenstellplatz + Garage
Weitere Informationen
Besichtigungstermine
Für einen Besichtigungstermin einfach schreiben oder anrufen.
Dokumente
Anbieter der Immobilie
Immobilien & Finanzierung Markus Hoffmann
Feigenberg 24, 76770 Hatzenbühl
Online-ID: 2lnsy53
Finde Angebote wie dieses
Hier geht es zu unserem Impressum, den Allgemeinen Geschäftsbedingungen, den Hinweisen zum Datenschutz und nutzungsbasierter Online-Werbung.