Daun + Cie. AG

Frau Nadine Gellisch

* Ladenfläche mit schöner Fensterfront * Viel Platz für Ihre Geschäftsidee *

€ 3.680
Nettomiete zzgl. NK
736 m²
Verkaufsfläche ca.
k.A.
Teilbare Fläche
k.A.
Zimmer

Der Anbieter dieses Objekts hat gegenüber der AVIV Germany GmbH als Betreiber dieses Online-Marktplatzes erklärt, nicht als Unternehmer im Sinne des § 1 KSchG zu handeln. Die im Verbraucherschutzrecht der Union verankerten Verbraucherrechte (insbesondere Informationspflichten und Rücktritts- bzw. Widerrufsrechte) finden auf den Vertrag zwischen dem Anbieter des Objekts und Ihnen (dem Interessenten) keine Anwendung.

Provisionsfrei
Gewerblicher Anbieter

Der Anbieter dieses Objekts hat gegenüber der AVIV Germany GmbH als Betreiber dieses Online-Marktplatzes erklärt, als Unternehmer im Sinne des § 1 KSchG zu handeln.

AdresseWerdumer Straße 106
26386 Wilhelmshaven 
(Altengroden)
Auf Karte ansehen

Preise & Kosten

Nettomiete € 3.680 Nebenkosten € 885 Heizkosten € 565 Warmmiete € 5.130

Kaution

3 Kaltmieten

Provision für Mieter

provisionsfrei

Lage

Das Objekt befindet sich in verkehrsgünstiger Lage von Altengroden in Wilhelmshaven. Die Werdumer Straße ist eine Wohnstraße mit hohem Gewerbeanteil.

Ein barrierefreier Zugang zu Ihren neuen Geschäftsräumen lädt ein zum stöbern und beraten. Zum Dekorieren und Werben der neuen Fensterfront sind Ihre Ideen gefragt...

Mehr anzeigen

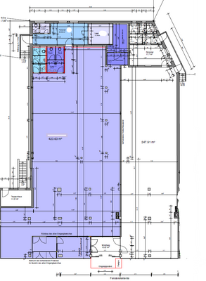
Die Ladenfläche

Kategorie

Laden

Baujahr

1959

Bezug

zum 01.01.2025

  • Böden: Fliesenboden
  • Fenster: Kunststofffenster
  • Teeküche

Energie & Heizung

Wärme

0 100 200 300 400 500 600 700 800 900 1000 +

Strom

0 100 200 300 400 500 600 700 800 900 1000 +

Energieausweistyp

Verbrauchsausweis

Gebäudetyp

Nicht-Wohngebäude

Baujahr laut Energieausweis

1959

Wesentliche Energieträger

Gas

Gültigkeit

25.04.2024 bis 24.04.2034

Endenergieverbrauch (Wärme)

270,30 kWh/(m²·a) - Warmwasser enthalten

Endenergieverbrauch (Strom)

34,00 kWh/(m²·a) - Warmwasser enthalten

Weitere Energiedaten

Energieträger

Gas

Details

Objektbeschreibung

Diese helle, ebenerdige, barrierefreie Gewerbefläche bietet vielfältige Möglichkeiten. Sie benötigen lediglich eine Teilfläche? Sprechen Sie uns hier ebenfalls gerne an.

Die Fensterfront ist modern gestaltet.

Garagen direkt am Objekt können mit angemietet werden.

Weitere Informationen

Besichtigungstermine
Vereinbaren Sie gerne einen Besichtigungstermin mit unserem Hause.

Es fällt keine Provision an, da Sie direkt vom Eigentümer mieten.

Eine Kaution in Höhe von 3 Monatskaltmieten kann in bar oder als Bankbürgschaft bzw. Kautionsversicherung hinterlegt werden.

Stichworte
Sonstiges...

Mehr anzeigen

Dokumente

file_pdfEnergieausweisangle_right

Anbieter der Immobilie

PartnerDiamond Partner

Daun + Cie. AG

im Durchschnitt  4,30  Sterne
(bei 6 Bewertungen)

Bahnhofstraße 21, 26180 Rastede

user

Frau Nadine Gellisch

Dein Ansprechpartner

Anbieter-Website Anbieter-Impressum

Online-ID: 2lnu65l

Referenznummer: 6 EG2+EG3

Finde Angebote wie dieses

imageimageimage

Hier geht es zu unserem Impressum, den Allgemeinen Geschäftsbedingungen, den Hinweisen zum Datenschutz und nutzungsbasierter Online-Werbung.