
Brinkmeier & Liebelt GmbH & Co. KG
Frau Maren Brinkmeier
+49 ···
Nr. anzeigenPreise & Kosten
Provision für Käufer
Die zu zahlende Maklerprovision beträgt für den Käufer 2,975 % inkl. der gesetzlichen MwSt. auf den Kaufpreis, verdient und zahlbar bei Vertragsabschluss.
Lage
. die hier angebotene Immobilie befindet sich in ruhiger elbnaher Ortslage von Lauenburg
. die Nachbarschaft ist geprägt von gepflegter Wohnbebauung mit gutem sozialem Umfeld
. Lauenburg/ Elbe ist eine Kleinstadt im Kreis Herzogtum Lauenburg im Dreiländereck Schleswig-Holstein - Niedersachsen - Mecklenburg-Vorpommern...
Das Haus
Kategorie
Einfamilienhaus
Baujahr
1978
Bezug
nach Vereinbarung
Energie & Heizung
Warum sehe ich diese Anzeige? – Du siehst diese Anzeige basierend auf Ihrer Navigation auf unserer Website und den Suchkriterien, die du verwendet hast.
Energieausweistyp
Verbrauchsausweis
Gebäudetyp
Wohngebäude
Baujahr laut Energieausweis
1978
Wesentliche Energieträger
Öl
Effizienzklasse
D
Endenergieverbrauch
117,80 kWh/(m²·a) - Warmwasser enthalten
Weitere Energiedaten
Energieträger
Öl
Heizungsart
Zentralheizung
Details
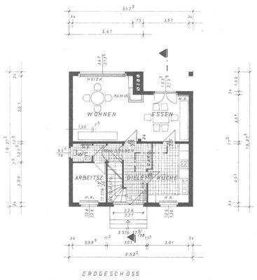
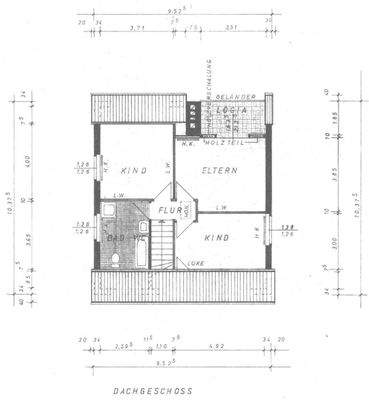
Objektbeschreibung
. massiv konventionelle Bauweise
. eingeschossig mit voll ausgebautem Dachgeschoss und möglicher Ausbaureserve im bereits ausgedieltem Spitzboden
. klassisches Satteldach mit dunkler Pfanneneindeckung
. Dachrinnen und Fallrohre wertig aus Kupfer von 2000
. ansprechend rote Klinkerfassade
. isolierverglaste...
Ausstattung
. es empfängt Sie ein ansprechend gestalteter Treppenaufgang mit hart gebrannten Klinkern
. der Eingangsbereich ist gegliedert in eine große Diele mit praktischer Garderobenmöglichkeit und Zugang zu allen Räumen im Erdgeschoss, in das Dachgeschoss und den Keller
. großzügiger und repräsentativer Wohn- /Essbereich mit...
Weitere Informationen
Provision
Die zu zahlende Maklerprovision beträgt für den Käufer 2,975 % inkl. der gesetzlichen MwSt. auf den Kaufpreis, verdient und zahlbar bei Vertragsabschluss.
Sonstiges
Dieses attraktive Domizil befindet sich in elbnaher und ruhiger Wohnlage von Lauenburg und wird jetzt aus "erster Hand" verkauft.
Es...
Anbieter der Immobilie
Brinkmeier & Liebelt GmbH & Co. KG
Lauenburger Str. 10, 21493 Schwarzenbek
Online-ID: 2lnux5u
Referenznummer: 1501
Finde Angebote wie dieses
Hier geht es zu unserem Impressum, den Allgemeinen Geschäftsbedingungen, den Hinweisen zum Datenschutz und nutzungsbasierter Online-Werbung.