Einfamilienhaus zum Kauf549000 €2.336 €/m²5 Zimmer • 235 m² • 307 m² Grundstück
549000 €
2.336 €/m²
5 Zimmer • 235 m² • 307 m² Grundstück
Elegante Häuser mit Pools im Vistabella Golf Resort
Merkmale
- Bezug: Spain Homes
- 307 m² Grundstück
- voll klimatisiert
- Swimmingpool
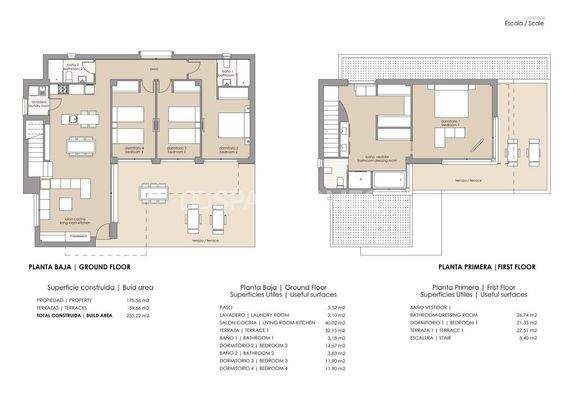
Grundrisse
Grundrisse
1 / 1
Bausubstanz und Energie
Möchtest du Details zum Energieverbrauch?

- Baujahr2027
Preisdetails
Kaufpreis
549000 €
2.336,17 €/m²
Provision für Käufer
Bitte beachte, das Angebot kann bei Vertragsabschluss die Zahlung einer Provision beinhalten. Weitere Informationen erhältst Du vom Anbieter.
Lage

Alicante (03319)
Der Anbieter hat die genaue Adresse nicht freigegeben
Weitere Informationen
Weitere Services
Lust auf eine Besichtigung?
Eine Frage zur Immobilie?
Über den Anbieter
C/El Montículo 8, Benalmádena, 29631 MÁLAGA
Partnerschaft

Herr Santiago de Cordoba EstepaDein Kontakt
Online-ID: 25PZB695JJEX
Referenznummer: ALC-1121-4-DetachedVilla
Wie zufrieden bist du mit dieser Seite (nicht mit der Immobilie selbst)?
