
EHL Immobilien GmbH
Frau Birgita EHRENBERGER
+43 ···
Nr. anzeigenPreise & Kosten
Provision für Käufer
3% des Kaufpreises zzgl. 20% USt.
Die Wohnung
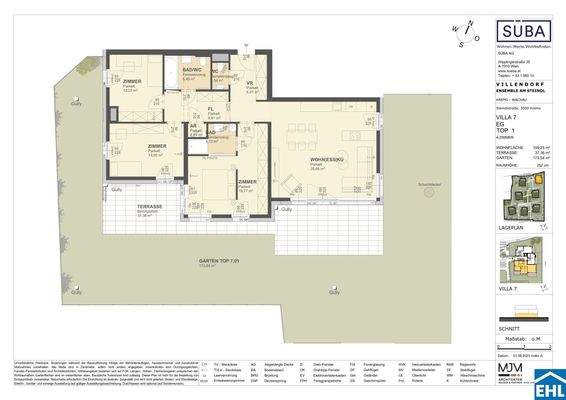
Wohnungslage
Erdgeschoss
Bezug
4. Quartal 2024
Wohnanlage
Energie & Heizung
Warum sehe ich diese Anzeige? – Du siehst diese Anzeige basierend auf Ihrer Navigation auf unserer Website und den Suchkriterien, die du verwendet hast.
Heizwärmebedarf (HWB)
26,20 kWh/(m²·a)
Gesamtenergieeffizienz (fGEE)
0,57
Weitere Energiedaten
Energieträger
Erdwärme, Solar
Heizungsart
Luft-/Wasser-Wärmepumpe
Details
Objektbeschreibung
Wohnkomfort der Extraklasse: Ensemble Krems mit Weitblick!
Willkommen in dem einzigartigen Wohnprojekt "Ensemble Krems", welches luxuriöses Wohnen mit modernster Energieeffizienz vereint. Erleben Sie exklusives Ambiente in sieben stilvollen Villen, die insgesamt 62 exklusive Eigentumswohnungen beherbergen. Am...
Weitere Informationen
Stichworte
Süd-Ost-Balkon/Terrasse, Anzahl der Badezimmer: 2, Anzahl der separaten WCs: 2, Anzahl Terrassen: 1, Balkon-Terrassen-Fläche: 37,36 m², Gartenfläche: 173,54 m², Kellerfläche: 10,02 m², Bundesland: Niederösterreich, 3 Etagen, Wohnungsnr.: 1
Dokumente
Anbieter der Immobilie
EHL Immobilien GmbH
Prinz-Eugen-Straße 8-10, 1040 WIEN
Online-ID: 2lp4m5g
Referenznummer: OBGC2024011113050240224d26720bd
Finde Angebote wie dieses
Günstige Immobilienfinanzierung einfach online berechnen
Persönliches Angebot berechnenWarum sehe ich diese Werbung? – Du siehst diese Werbung basierend auf Deiner Navigation auf unserer Website und der von Dir verwendeten Suchkriterien.
Diese Werbung wird bezahlt von durchblicker
Werbung melden
Hier geht es zu unserem Impressum, den Allgemeinen Geschäftsbedingungen, den Hinweisen zum Datenschutz und nutzungsbasierter Online-Werbung.