Immobilien Resch

Frau Elisabeth Resch

*Projekt Murfeldsiedlung*Neubauwohnung mit Balkon in Gratwein Straßengel- Haus A Top 5

€ 259.990
Kaufpreis
66 m²
Wohnfläche ca.
3
Zimmer
Finanzierung berechnen mit durchblicker

Der Anbieter dieses Objekts hat gegenüber der AVIV Germany GmbH als Betreiber dieses Online-Marktplatzes erklärt, nicht als Unternehmer im Sinne des § 1 KSchG zu handeln. Die im Verbraucherschutzrecht der Union verankerten Verbraucherrechte (insbesondere Informationspflichten und Rücktritts- bzw. Widerrufsrechte) finden auf den Vertrag zwischen dem Anbieter des Objekts und Ihnen (dem Interessenten) keine Anwendung.

Gewerblicher Anbieter

Der Anbieter dieses Objekts hat gegenüber der AVIV Germany GmbH als Betreiber dieses Online-Marktplatzes erklärt, als Unternehmer im Sinne des § 1 KSchG zu handeln.

AdresseStraße nicht freigegeben
8111 Gratwein-Straßengel 
Auf Karte ansehen

Preise & Kosten

Kaufpreis € 259.990

Provision für Käufer

3.60 % inkl. MwSt.

Lage

Die Wohnung

Wohnungslage

1. Geschoss

  • Balkon
  • barrierefrei
  • Zustand: Erstbezug
  • Weitere Räume: Kelleranteil

Wohnanlage

  • Zustand: Neubau
  • 2 Stellplätze

Energie & Heizung

Heizwärmebedarf (HWB)

39,60 kWh/(m²·a)

Weitere Energiedaten

Heizungsart

Fußbodenheizung

Details

Objektbeschreibung

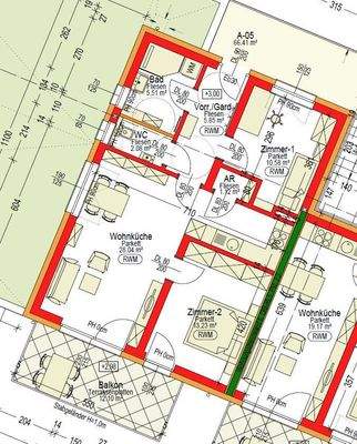
Obj. Nr. 72, *Projekt Murfeldsiedlung*Neubauwohnung mit Balkon in Gratwein Straßengel- Haus A Top 5

66 m² Wohnfläche, 12 m² Balkon,
Vorraum, Abstellraum, Badezimmer, WC, Küchen-Wohn-Essbereich, 2 Schlafzimmer, Kellerraum mit 9 m²
Fenster: Kunststofffenster 3-fach verglast, elektr. Rollos, Boden: Parkett, Heizung...

Mehr anzeigen

Preisinformation

2 Stellplätze

Weitere Informationen

Stichworte
Stellplatz vorhanden, Anzahl der Schlafzimmer: 2, Anzahl der Badezimmer: 1, Anzahl der separaten WCs: 1, Anzahl Balkone: 1, Balkon-Terrassen-Fläche: 12,00 m², Kellerfläche: 9,00 m², Bundesland: Steiermark

Sonstiges: Neubaustandard

Anbieter der Immobilie

Partner

Immobilien Resch

Haushamer Straße 2/1 OG , 8054 Seiersberg

Geschäftszeiten
user

Frau Elisabeth Resch

Dein Ansprechpartner

Anbieter-Website Anbieter-Profil Anbieter-Impressum

Online-ID: 2lp4x5q

Referenznummer: 3749/1577

Finde Angebote wie dieses

imageimageimage

Günstige Immobilienfinanzierung einfach online berechnen

Persönliches Angebot berechnen

Hier geht es zu unserem Impressum, den Allgemeinen Geschäftsbedingungen, den Hinweisen zum Datenschutz und nutzungsbasierter Online-Werbung.