
CENTURY 21 WohnManufaktur
Herr Peter Polnik
033 ···
Nr. anzeigenPreise & Kosten
Provision für Käufer
3.57% inkl. MwSt.
Die Käuferprovision beträgt 3,57 % des Kaufpreises inkl. 19% MwSt.
Lage
Die Immobilie befindet sich in einer idyllischen Einfamilienhaussiedlung in Gransee, die durch ihre ruhige Lage besticht.
Der großzügige Garten lädt zur Entspannung ein und bietet genügend Platz für vielfältige Freizeitaktivitäten. Trotz der abgeschiedenen Atmosphäre verfügt der Standort über eine sehr gute...
Das Haus
Kategorie
Einfamilienhaus
Baujahr
1978
Energie & Heizung
Warum sehe ich diese Anzeige? – Du siehst diese Anzeige basierend auf Ihrer Navigation auf unserer Website und den Suchkriterien, die du verwendet hast.
Energieausweistyp
Verbrauchsausweis
Gebäudetyp
Wohngebäude
Baujahr laut Energieausweis
1978
Wesentliche Energieträger
GAS
Effizienzklasse
C
Endenergieverbrauch
90,60 kWh/(m²·a)
Weitere Energiedaten
Energieträger
Gas
Heizungsart
Zentralheizung
Details
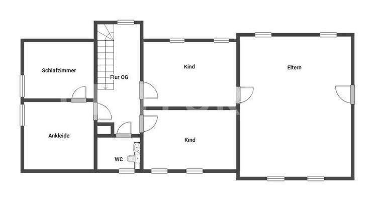
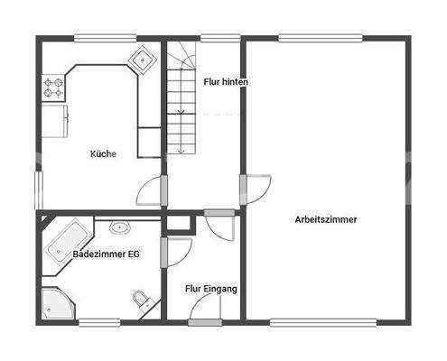
Objektbeschreibung
Zum Verkauf stehen zwei charmante Einfamilienhäuser, die massiv im Jahr 1978 und 1996 erbaut wurden und sich auf einem großzügigen Grundstück von ca. 1.337 m² befinden.
Das erste Haus bietet eine Wohnfläche von ca. 162 m² und das zweite Haus ca. 105 m², ideal für eine große Familie oder als Mehrgenerationenlösung...
Ausstattung
Haus 1
+ ca. 162 m² Wohnfläche
+ 7 Zimmer
+ gepflegte EBK
+ Dusch- Wannenbad EG
+ Gäste WC OG
+ Badezimmer inkl. Sauna im UG
+ Massivbau im Jahr 1978
+ vollunterkellert
+ ca. 67m² Nutzfläche
Haus 2
+ ca. 105m²
+ 4 Zimmer
+ Massivbau im Jahr 1996
+ gepflegtes Dusch-...
Weitere Informationen
Sonstiges
Das Exposé zu diesem Angebot und die darin gemachten Angaben in Wort, Bild und Werten stellen keine Beschaffenheitsvereinbarung dar.
Bitte haben Sie dafür Verständnis, dass wir aus Gründen der Dokumentationspflicht ausschließlich Anfragen mit kompletten Angaben (Namen, Adresse, Rufnummer) bearbeiten...
Dokumente
Anbieter der Immobilie
Online-ID: 2lp5c5x
Referenznummer: C21_PPOL_45831
Finde Angebote wie dieses
Hier geht es zu unserem Impressum, den Allgemeinen Geschäftsbedingungen, den Hinweisen zum Datenschutz und nutzungsbasierter Online-Werbung.