
HausHirsch GmbH
Herr Angelo Matarazzo
+49 ···
Nr. anzeigenPreise & Kosten
Provision für Käufer
3,57%
Die angegebene Käuferprovision (inkl. MwSt.) ist verdient und fällig mit Beurkundung des notariellen Kaufvertrages.
Lage
Die Immobilie liegt im Windecker Ortsteil Rosbach-Obernau. In der direkten Nachbarschaft finden Sie Bestandsimmobilien und Neubauten in einem sehr gepflegten kinder- und familienfreundlichen Umfeld. Grundschule, Kindergarten und Bürgerhaus sind in Obernau fußläufig zu erreichen. Weiterführende Schulen gibt es in Rosbach...
Das Haus
Kategorie
Mehrfamilienhaus
Baujahr
2004
Bezug
Nach Vereinbarung
Energie & Heizung
Warum sehe ich diese Anzeige? – Du siehst diese Anzeige basierend auf Ihrer Navigation auf unserer Website und den Suchkriterien, die du verwendet hast.
Energieausweistyp
Verbrauchsausweis
Gebäudetyp
Wohngebäude
Wesentliche Energieträger
Erdwärme
Gültigkeit
12.07.2024 bis 12.07.2034
Endenergieverbrauch
24,60 kWh/(m²·a) - Warmwasser enthalten
Weitere Energiedaten
Energieträger
Erdwärme
Heizungsart
offener Kamin
Details
Objektbeschreibung
Ihr neues Zuhause: Großzügig, energieeffizient und naturnah
Sie suchen ein Zuhause, das großzügigen Wohnraum für die ganze Familie bietet, höchste energetische Standards erfüllt und Ihnen zugleich ein Leben in naturnaher Umgebung ermöglicht? Dann könnte dieses einzigartige Einfamilienhaus genau das Richtige für Sie...
Ausstattung
Ausstattung - Komfort trifft durchdachte Funktionalität**
Viel Platz mit intelligenter Aufteilung
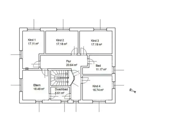
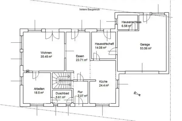
Die Wohnfläche erstreckt sich über drei Ebenen und bietet flexible Nutzungsmöglichkeiten:
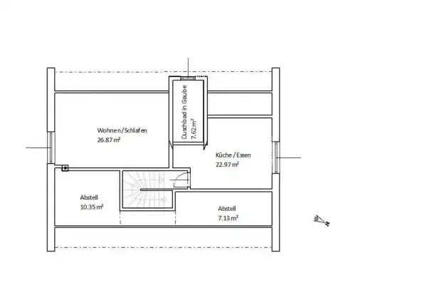
Erdgeschoss (ca. 120 m²)
Im Erdgeschoss erwarten Sie ein großzügiges Wohnzimmer, ein Esszimmer, eine voll...
Preisinformation
3 Stellplätze
Weitere Informationen
Sonstiges
Die Immobilie wird über eine effiziente Fußbodenheizung beheizt, die durch eine umweltfreundliche Erdwärmepumpe betrieben wird.
Die laufenden Kosten (Stand 2023) setzen sich wie folgt zusammen:
- Strom für Heizung (7.343 kWh): 1.939,19 € pro Jahr / 161,60 € pro Monat
- Wasser, Abwasser und...
Anbieter der Immobilie
Online-ID: 2lp5w5c
Referenznummer: HA2524700
Finde Angebote wie dieses
Hier geht es zu unserem Impressum, den Allgemeinen Geschäftsbedingungen, den Hinweisen zum Datenschutz und nutzungsbasierter Online-Werbung.