

Hanseatic Wohnen Holding GmbH
Frau Sabrina Reinert
051 ···
Nr. anzeigenPreise & Kosten
in Warmmiete enthalten
Kaution
1695
Warum sehe ich diese Anzeige? – Du siehst diese Anzeige basierend auf Ihrer Navigation auf unserer Website und den Suchkriterien, die du verwendet hast.
Lage
Die Lage, des Mehrfamilienhauses am Waldrand von Clausthal-
Zellerfeld, bietet Ruhe und Entspannung, trotzdem sind alle
nötigen Versorgungsmöglichkeiten schnell erreichbar.
Die Wohnung
Wohnungslage
2. Geschoss
Bezug
sofort oder nach Vereinbarung
Derzeitige Nutzung
frei
Wohnanlage
Energie & Heizung
Warum sehe ich diese Anzeige? – Du siehst diese Anzeige basierend auf Ihrer Navigation auf unserer Website und den Suchkriterien, die du verwendet hast.
Energieausweistyp
Verbrauchsausweis
Gebäudetyp
Wohngebäude
Baujahr laut Energieausweis
1973
Wesentliche Energieträger
Gas
Effizienzklasse
E
Endenergieverbrauch
154,40 kWh/(m²·a)
Weitere Energiedaten
Energieträger
Gas
Heizungsart
Zentralheizung
Details
Objektbeschreibung
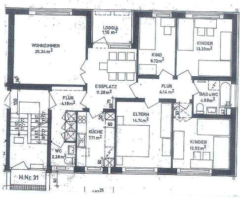
Diese hübsche 5-Zimmer-Wohnung befindet sich im 2. Obergeschoss eines Mehrfamilienhauses.
Ausstattung
Im Eingangsbereich finden Sie das Gäste-WC mit Fenster und einen praktischen Einbauschrank mit viel Stauraum.
Das helle Wohnzimmer mit 20 m² Fläche verfügt über eine Doppelflügeltür, die zum Essbereich mit Balkonzugang hin geöffnet werden kann.
Hier im Überblick
- Wohnzimmer
- 4 weitere Zimmer
-...
Weitere Informationen
Sonstiges
Sollten wir Ihr Interesse geweckt haben, vereinbaren Sie gerne einen Besichtigungstermin mit uns.
Wir freuen uns auf Ihre Anfrage!
Stichworte
Sonstiges/Wohnen: Dachboden
Versorgung: Eigene Wasserversorgung, Eigene Stromversorgung
Dokumente
Anbieter der Immobilie
Hanseatic Wohnen Holding GmbH
Phoenixallee 11, 31137 Hildesheim

Online-ID: 2lp725y
Referenznummer: 4104.1205TA312R102
Finde Angebote wie dieses
Weitere Immobilien
Hier geht es zu unserem Impressum, den Allgemeinen Geschäftsbedingungen, den Hinweisen zum Datenschutz und nutzungsbasierter Online-Werbung.