Version: 8.25.1Navigation überspringen
1.581 €
5 Zimmer  •  139,7 m²
Immowelt logo

Doppelhaushälfte zur Miete
1.581 €
5 Zimmer  •  139,7 m²

Freifinanzierte Doppelhäuser in Bad Fischau - MIETE MIT KAUFOPTION

FREIFINANZIERTE DOPPELHÄUSER IN BAD FISCHAU - MIETE MIT KAUFOPTION

 

Mein Zuhause. Zum Ankommen, zum Abschalten, zum Leben, zum Lieben. Genau das ist unser Ziel. Wir brauchen Wohnträume und Lebensräume, in denen sich unsere zukünftigen Mieter wohlfühlen. 

In der lebenswerten Marktgemeinde Bad Fischau errichtet die Neue Eisenstädter eine Reihenhausanlage mit 3 Doppelhäusern und einem Einzelhaus.

Die Marktgemeinde liegt am Südhang der Thermenlinie, rund 30 Autominuten von Wien entfernt. Das Juwel von Bad Fischau ist das romantische Thermalbad mit seinem historischen Ambiente. Die Häuser untergliedern sich in Keller-, Erd-, Ober- und Dachgeschoss und verfügen alle über einen großzügigen Garten. Ein zusätzliches Highlight ist das Atelier, welches zusätzlich Stauraum im Haus bietet.

 

Lassen Sie sich diese einmalige Gelegenheit nicht entgehen - Ihr neues Traumhaus wartet auf Sie!

 

ZUERST MIETE - NACH 10 JAHREN KAUF MÖGLICH

 

Mit Bezahlung des Finanzierungsbeitrages erwerben Sie das Optionsrecht auf Kauf des gemieteten Reihenhauses gem.  den Bestimmungen des Wohnungsgemeinnützigkeitsgesetzes, dem die NEUE EISENSTÄDTER als gemeinnütziger Bauträger unterliegt.

Die Kaufoption kann erstmals nach Ablauf von fünf Jahren nach Abschluss des Mietvertrages ausgeübt werden, indem Sie einen Antrag auf Übertragung des Reihenhauses ins Eigentum stellen. Ein derartiger Antrag kann danach noch zwei Mal jeweils nach Ablauf von fünf Jahren gestellt werden.

Auch die Abwicklung des Kaufes unterliegt den gesetzlichen Bestimmungen des Wohnungsgemeinnützigkeitsgesetzes (Kaufpreisermittlung zum Zeitpunkt des Kaufes etc.).

 

Freifinanziertes Bauprojekt

Da für die Errichtung des gegenständlichen Objektes keine Wohnbauförderung in Anspruch genommen wird, muss hier:

*  nicht die österreichische Staatsbürgerschaft gegeben sein (EU-Bürger)
*  keine Einkommensgrenze eingehalten werden. 
*  Der Vertragsnehmer hat jedoch den Hauptwohnsitz zu begründen!

 

Folgende Wohneinheiten stehen im Moment zur Verfügung:

 

DH 2-1

Wohnfläche: 139,70 m²

Eigengarten: 177,96 m²

Finanzierungsbeitrag: € 153.444,96

Gesamtmiete:  1.738,04

 

DH 2-2

Wohnfläche: 139,70 m²

Eigengarten: 238,73 m²

Finanzierungsbeitrag: € 162.582,39

Gesamtmiete:  1.738,80

 

H 4

Wohnfläche: 142,39 m²

Eigengarten: 514,55 m²

Finanzierungsbeitrag: € 269.862,16

Gesamtmiete:  1.886,08

 

 

Die monatliche Gesamtmiete setzt sich zusammen

* aus der Miete = der Tilgung der Darlehen (Bankdarlehen + EM GBV)
* aus den Betriebskosten
* den Instandhaltungs- und Verwaltungskosten
* der gesetzlichen Mehrwertsteuer
* sowie den PKW-Stellplätzen

 

Die Betriebskosten beinhalten

*  Gebäudeversicherung
*  Grundsteuer
*  Allgemeinstrom
*  Winterdienst-Privatstraße
*  Kaltwasser und Kanal

 

Die Kosten für Müll. Strom und Heizung werden von den Betreibern direkt mit dem Mieter verrechnet.  Es gibt eine Sammelstelle für den Müllplatz, die Bewohner müssen die Tonnen zu den Terminen an den dafür vorgesehenen Müllsammelplatz bringen.

 

Für später notwendige Instandsetzungsarbeiten am Gebäude und an den Außenanlagen wird ein "Erhaltungs- und Verbesserungsbeitrag (EVB)" einbehalten. Der Erhaltungs- und Verbesserungsbeitrag wird ebenso wie die Höhe der Verwaltungskosten nach den gesetzlichen Bestimmungen festgelegt.

 

Die Gesamtmiete enthält weiters die gesetzliche Mehrwertsteuer.

 

In der Gesamtmiete ist auch die PKW-Stellplätze enthalten

 

Unsere Angaben erfolgen aufgrund der Informationen und Unterlagen, welche uns vom Abgeber oder dessen Beauftragten zur Verfügung gestellt wurden und sind ohne Gewähr.

 

Für Rückfragen und Besichtigung stehe ich Ihnen unter der Tel. Nr. 0664 / 621 20 58  selbstverständlich gerne zur Verfügung.

 

Ihre Immobilienträume.

Unser Ziel!

www.realbrokers.at

Wir weisen darauf hin, dass zwischen dem Vermittler und dem zu vermittelnden Dritten ein familiäres oder wirtschaftliches Naheverhältnis besteht.

Der Immobilienmakler erklärt, dass er - entgegen dem in der Immobilienwirtschaft üblichen Geschäftsgebrauch des Doppelmaklers - einseitig nur für den Vermieter tätig ist.

Infrastruktur / Entfernungen

Gesundheit
Arzt <4.000m
Apotheke <4.500m
Klinik <6.500m
Krankenhaus <6.500m

Kinder & Schulen
Schule <3.000m
Kindergarten <2.000m
Höhere Schule <6.500m
Universität <5.500m

Nahversorgung
Supermarkt <2.000m
Bäckerei <1.500m
Einkaufszentrum <4.500m

Sonstige
Bank <1.500m
Geldautomat <1.500m
Post <1.500m
Polizei <3.000m

Verkehr
Bus <1.000m
Bahnhof <1.500m
Autobahnanschluss <1.000m
Flughafen <4.000m

Angaben Entfernung Luftlinie / Quelle: OpenStreetMap

Merkmale

  • Bezug: sofort
  • voll erschlossen
  • Badezimmer: Badewanne, Bad mit Dusche, Bad mit Fenster
  • Bodenbelag: Fliesen, Parkett
  • Terrasse
  • 2 Stellplätze: 2 Außen-Stellplätze
  • Kabelanschluss

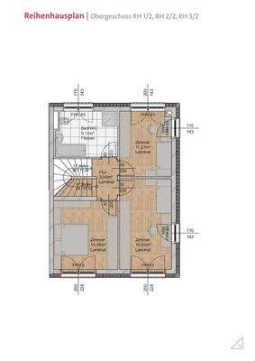
Grundrisse

Grundrisse
1 / 5

Realisiere Dein Projekt

Bausubstanz und Energie

Heizwärmebedarf (HWB)

B

Gesamtenergieeffizienz (fGEE)

A++
  • Baujahr2024
  • Zustand der ImmobilieNeubau, Massivhaus, neuwertig
  • HeizungsartFußbodenheizung
  • EnergieträgerLuft-/Wasser-Wärmepumpe
Immowelt logo

Mietkosten

Gesamtmiete
1.738,80 €
Nettokaltmiete zzgl. Betriebskosten
11,32 €/m²
1.580,73 €
Kaution
keine Angabe
Weitere Preisinformationen
2 Stellplätze
Nettokaltmiete: 1.580,73 EUR

Lage

address-icon
Bad Fischau (2721)

Weitere Informationen

Stichworte Stellplatz vorhanden, Süd-Balkon/Terrasse, Rolladen, Anzahl der Badezimmer: 1, Anzahl der separaten WCs: 2, Anzahl Terrassen: 1, Balkon-Terrassen-Fläche: 28,86 m², Gartenfläche: 238,73 m², Kellerfläche: 54,85 m², Bundesland: Niederösterreich

Weitere Services

Lust auf eine Besichtigung?
Eine Frage zur Immobilie?
Mit einer persönlichen Nachricht hast du bessere Chancen auf eine Antwort.
Mit der Nutzung der oben angegebenen Telefonnummer oder durch Klicken auf „Kontaktieren“ akzeptierst Du die Allgemeinen Nutzungsbedingungen, denen Du jederzeit widersprechen kannst. Weitere Informationen zum Datenschutz

Über den Anbieter

Braitnerstraße 41 Büro 1A, 2500 BADEN
partner badge
Partnerschaft
Frau Claudia KollerDein Kontakt
Online-ID: 25WLDPGVH5CB
Referenznummer: OBGC202503301330271518baae54de7
realbrokers immobilien dienstl. GmbH & Co KG
Bewertung: 4,6 von 5 Sternen
Mit einer persönlichen Nachricht hast du bessere Chancen auf eine Antwort.
Mit der Nutzung der oben angegebenen Telefonnummer oder durch Klicken auf „Kontaktieren“ akzeptierst Du die Allgemeinen Nutzungsbedingungen, denen Du jederzeit widersprechen kannst. Weitere Informationen zum Datenschutz
Wie zufrieden bist du mit dieser Seite (nicht mit der Immobilie selbst)?