
Scherf Profi Immobilien Service GmbH
Herr Norbert Scherf
065 ···
Nr. anzeigenPreise & Kosten
Provision für Käufer
provisionsfrei
Lage
Bollendorf, gefragter Wohnort unmittelbar an der Grenze zu Luxemburg - nur wenige Kilometer von Echternach entfernt. Alle Einrichtungen des täglichen Bedarfs sind auf kurzen Wegen erreichbar. Ebenso ist eine gute Verkehrsanbindung in alle Richtungen gegeben. Die Haltestelle des Luxemburger Busses ist ebenso füßläufig in 10...
Das Haus
Kategorie
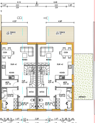
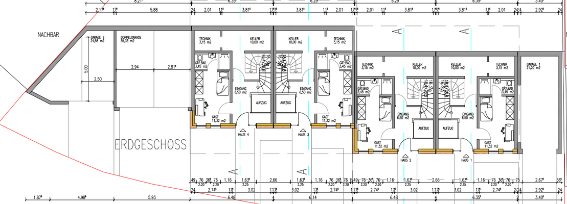
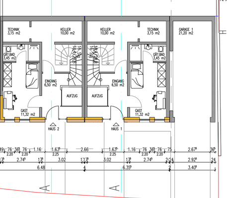
Reihenmittelhaus
Baujahr
2026
Bezug
2027
Energie & Heizung
Warum sehe ich diese Anzeige? – Du siehst diese Anzeige basierend auf Ihrer Navigation auf unserer Website und den Suchkriterien, die du verwendet hast.
Weitere Energiedaten
Haustyp
KfW 40, Massivhaus
Heizungsart
Fußbodenheizung
Details
Objektbeschreibung
Neue helle attraktive KFW 40 Energiesparhäuser in gefragter Lage von Bollendorf mit guter Anbindung nach Luxemburg.
Hier entstehen 4 moderne helle Wohnhäuser in massiver Ausführung (Stein auf Stein) mit guter Ausstattung sowie attraktiven Grundrissen. Eine gute Innenausstattung, moderne Heiztechnik mit einer Wärmepumpe in...
Ausstattung
Neue helle attraktive KFW 40 Energiesparhäuser in gefragter Lage von Bollendorf mit guter Anbindung nach Luxemburg.
Hier entstehen 4 moderne helle Wohnhäuser in massiver Ausführung (Stein auf Stein) mit guter Ausstattung sowie attraktiven Grundrissen. Eine gute Innenausstattung, moderne Heiztechnik mit einer Wärmepumpe in...
Preisinformation
1 Garagenstellplatz
Weitere Informationen
Sonstiges
Vereinbaren Sie einen Beratungs bzw. Besichtigungstermin !
Der Energieausweis liegt vor.
Dieser wird dem Interessenten vor dem Besichtigungstermin mit dem Exposé zur Verfügung gestellt.
Wir sind gerne in Zusammenarbeit mit einem Finanzierungsvermittler bei der Vermittlung einer Finanzierung die...
Anbieter der Immobilie
Online-ID: 2lp765u
Referenznummer: EFHNBB0102
Finde Angebote wie dieses
Hier geht es zu unserem Impressum, den Allgemeinen Geschäftsbedingungen, den Hinweisen zum Datenschutz und nutzungsbasierter Online-Werbung.