

von Schlapp Immobilien - Nadia Schlapp
Herr Heiko Kennel
065 ···
Nr. anzeigenPreise & Kosten
Provision für Käufer
4,76% des Kaufpreises inkl. 19% MwSt. inkl. MwSt.
Die Maklerprovision in Höhe von 4,76% errechnet sich durch 4% des Kaufpreises ,und/oder vergleichbarer Geschäfte/Werte, zzgl. 19% MwSt. und ist vom Käufer nach notarieller Beurkundung zu zahlen.
Lage
Die hellen Wandfliesen bieten einen klaren Kontrast zu den dunklen Bodenfliesen und die der Dusche und der Badewanne gegenüber liegenden Wand, welche mit rötlichen Riemchen verkleidet ist. Die zwei Waschbecken mit großen Spiegeln erlauben es sich zu zweit bei einer extravaganten Beleuchtung des gesamten Bades, der Morgen-...
Das Haus
Kategorie
Mehrfamilienhaus
Baujahr
1937
Bezug
sofort
Energie & Heizung
Warum sehe ich diese Anzeige? – Du siehst diese Anzeige basierend auf Ihrer Navigation auf unserer Website und den Suchkriterien, die du verwendet hast.
Weitere Energiedaten
Energieträger
Erdwärme, Solar
Heizungsart
Fußbodenheizung
Details
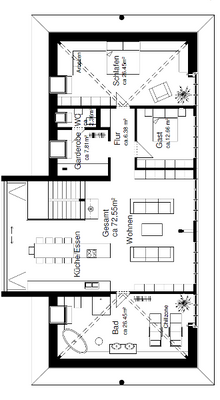
Objektbeschreibung
ENERGIEAUSWEIS
Der Energieausweis liegt seitens des Anbieters noch nicht vor.
---------------
Die Mittelgebirgslandschaft Pfälzer Wald im Bundesland Land Rheinland-Pfalz ist eines der größten zusammenhängenden Waldgebiete Deutschlands. Er stellt die zentrale Landschaft der Pfalz dar von der er auch seinen...
Ausstattung
Es erzeugt über das Jahr doppelt soviel Energie wie es verbraucht. Über eine südliche orientierte 30 KW Photovoltaikanlage wird in 9 von 12 Monaten elektrische Energie durch sie Sonne erzeugt. Die Anlage speist zudem noch einen 20 KWh Batteriespeicher und gerät nur an Tagen mit wolkenverhangenem Himmel in den Wintermonaten an...
Preisinformation
8 Stellplätze
Weitere Informationen
Sonstiges
Von Schlapp Immobilien - Denn wir vermitteln Ihnen Zufriedenheit
Nutzen Sie die Kontaktmöglichkeit über dieses Exposé und vereinbaren unverbindlich einen Besichtigungstermin. Ich werde mich umgehend mit Ihnen zwecks Terminabstimmung in Verbindung setzen.
Ihr Ansprechpartner für dieses...
Anbieter der Immobilie
von Schlapp Immobilien - Nadia Schlapp
Schimmelhof 1, 54338 Schweich

Online-ID: 2lpan5e
Referenznummer: BK00222
Finde Angebote wie dieses
Hier geht es zu unserem Impressum, den Allgemeinen Geschäftsbedingungen, den Hinweisen zum Datenschutz und nutzungsbasierter Online-Werbung.