
Neumann Immobilien GmbH
Herr Thomas Pflug
+49 ···
Nr. anzeigenPreise & Kosten
Provision für Käufer
5,95% inkl. MwSt. vom notariellen Kaufpreis
Lage
Das Villenviertel Karthäuserhöhe zählt zu den besten Adressen in Eisenach. Geprägt von stilvoller Bebauung, gepflegten Gärten und ruhigen Straßen, bietet die Lage ein exklusives Wohnumfeld mit gleichzeitig guter Anbindung an die Innenstadt und das Umland. Die Umgebung überzeugt durch eine hohe Lebensqualität und...
Das Haus
Kategorie
Mehrfamilienhaus
Baujahr
1912
Energie & Heizung
Warum sehe ich diese Anzeige? – Du siehst diese Anzeige basierend auf Ihrer Navigation auf unserer Website und den Suchkriterien, die du verwendet hast.
Energieausweistyp
Verbrauchsausweis
Gebäudetyp
Wohngebäude
Baujahr laut Energieausweis
1993
Wesentliche Energieträger
Gas
Gültigkeit
26.11.2024 bis 25.11.2034
Effizienzklasse
E
Endenergieverbrauch
131,82 kWh/(m²·a)
Weitere Energiedaten
Energieträger
Gas
Heizungsart
Zentralheizung
Details
Objektbeschreibung
Im Herzen des begehrten Eisenacher Südviertels - im Villengebiet Karthäuserhöhe - befindet sich dieses stilvolle Mehrfamilienhaus mit historischem Flair und moderner Substanz. Das im Jahr 1912 erbaute Gebäude wurde ab 1996 umfassend saniert und präsentiert sich heute in einem gepflegten und zeitgemäßen Zustand. Die Sanierung...
Ausstattung
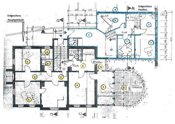
- 3 Etagen mit 6 Wohneinheiten
- angebauter Pavillon mit einer Wohneinheit
- 4 Balkone
- 2 Loggien
- 1 Wintergarten
- eine Terrasse
- großzügiges Grundstück
Weitere Informationen zu Ausstattungsdetails erhalten Sie gerne auf Anfrage! Bitte haben Sie Verständnis dafür, dass wir nur Anfragen mit...
Weitere Informationen
Sonstiges
Dieses Angebot ist freibleibend und unverbindlich. Irrtum oder Zwischenverwertung bleiben vorbehalten. Dieses Angebot wurde auf Grundlage der vom Eigentümer zur Verfügung gestellten Unterlagen sowie dessen Angaben, ohne Gewähr gefertigt.
Stichworte
Sonstiges/Wohnen: Dachboden
Anbieter der Immobilie
Neumann Immobilien GmbH
Theaterplatz 3, 99817 Eisenach
Online-ID: 2lpcj5u
Referenznummer: 1583 (1/1583)
Finde Angebote wie dieses
Hier geht es zu unserem Impressum, den Allgemeinen Geschäftsbedingungen, den Hinweisen zum Datenschutz und nutzungsbasierter Online-Werbung.