

ANGERMANN REAL ESTATE ADVISORY AG
Herr Tim Kolhoff
+49 ···
Nr. anzeigenPreise & Kosten
Provision für Mieter
provisionsfrei
Warum sehe ich diese Anzeige? – Du siehst diese Anzeige basierend auf Ihrer Navigation auf unserer Website und den Suchkriterien, die du verwendet hast.
Lage
Das markante Büro- und Geschäftsgebäude befindet sich direkt in der HafenCity, dem derzeit größten städteplanerischen Projekt Europas. Es entstehen Neubauten mit ca. 1,5 Mio. m² Bruttogeschossfläche.
Die historische Speicherstadt sowie die Lage am Hafenbecken und an der Elbe unterstreichen die maritime Atmosphäre...
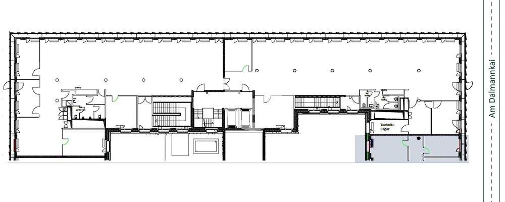
Büro-/Praxisfläche
Kategorie
Bürofläche
Baujahr
2011
Geschoss
Erdgeschoss
Energie & Heizung
Warum sehe ich diese Anzeige? – Du siehst diese Anzeige basierend auf Ihrer Navigation auf unserer Website und den Suchkriterien, die du verwendet hast.
Energieausweistyp
Bedarfsausweis
Gebäudetyp
Nicht-Wohngebäude
Wesentliche Energieträger
FERN
Gültigkeit
seit 14.11.2008
Endenergiebedarf
70,00 kWh/(m²·a)
Details
Objektbeschreibung
Diese Immobilie setzt Maßstäbe im Kern der HafenCity. Die exklusive Ausstattung schafft ein hochwertiges Erscheinungsbild. Beim Betreten des Gebäudes zeigt sich der erste Hingucker innerhalb des Gebäudes - die Eingangshalle. Dieses Highlight wird Ihnen, Ihren Mitarbeitern und Kunden nicht nur beim ersten Besuch auffallen. Der...
Weitere Informationen
Stichworte
Grundstücksfläche: 2.748,00 m²
Anbieter der Immobilie
ANGERMANN REAL ESTATE ADVISORY AG
ABC-Straße 35, 20354 Hamburg

Online-ID: 2lpdq5u
Referenznummer: 7226@13@0
Finde Angebote wie dieses
Hier geht es zu unserem Impressum, den Allgemeinen Geschäftsbedingungen, den Hinweisen zum Datenschutz und nutzungsbasierter Online-Werbung.