
Immobilien- & Verwaltungsbüro Jens Wendt
Herr Jens Wendt
037 ···
Nr. anzeigenPreise & Kosten
Kaution
840,00 840,00 EUR
Warum sehe ich diese Anzeige? – Du siehst diese Anzeige basierend auf Ihrer Navigation auf unserer Website und den Suchkriterien, die du verwendet hast.
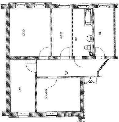
Die Wohnung
Wohnungslage
1. Geschoss
Bezug
sofort
Energie & Heizung
Warum sehe ich diese Anzeige? – Du siehst diese Anzeige basierend auf Ihrer Navigation auf unserer Website und den Suchkriterien, die du verwendet hast.
Energieausweistyp
Verbrauchsausweis
Gebäudetyp
Wohngebäude
Gültigkeit
01.08.2025 bis 01.07.2035
Effizienzklasse
D
Endenergieverbrauch
113,70 kWh/(m²·a) - Warmwasser enthalten
Weitere Energiedaten
Energieträger
Gas
Heizungsart
Zentralheizung
Details
Objektbeschreibung
Das Gebäude liegt im Schnittpunkt der Stadtteile Gablenz, Yorckgebiet und dem Sonnenberg. Der Standtort zeichnet sich durch eine sehr gute Infrastruktur aus. In wenigen Gehminuten sind Einkaufsmöglichkeiten für den täglichen Bedarf, Schule, Johannes-Kepler-Gymnasium, Kindergarten, Arzt und vieles mehr erreichbar. Haltestellen...
Weitere Informationen
Stichworte
Breitband Zugang: Glasfaser, Kabel, Anzahl der Schlafzimmer: 3, Anzahl der Badezimmer: 1, 4 Etagen
Anbieter der Immobilie
Immobilien- & Verwaltungsbüro Jens Wendt
Adelsbergstr. 94a, 09127 Chemnitz
Online-ID: 2lpds5l
Referenznummer: 158
Finde Angebote wie dieses
Hier geht es zu unserem Impressum, den Allgemeinen Geschäftsbedingungen, den Hinweisen zum Datenschutz und nutzungsbasierter Online-Werbung.