

ATIK Immobilien
Herr Erdem Atik
062 ···
Nr. anzeigenPreise & Kosten
Provision für Mieter
provisionsfrei
Warum sehe ich diese Anzeige? – Du siehst diese Anzeige basierend auf Ihrer Navigation auf unserer Website und den Suchkriterien, die du verwendet hast.
Lage
Im pulsierenden Stadtteil Gallus, direkt an der Kleyerstraße und in unmittelbarer Nähe zum Europaviertel, entsteht mit Das KLEYERS ein zukunftsweisendes Wohn- und Gewerbequartier, das zeitgemäße Architektur, durchdachte Grundrisse und hohe Wohnqualität vereint. Der Standort profitiert von einer hervorragenden Anbindung an den...
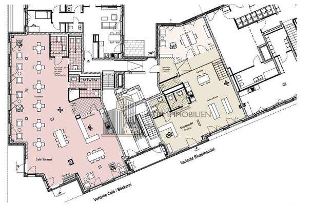
Die Ladenfläche
Kategorie
Laden
Details
Objektbeschreibung
Das KLEYERS bietet moderne und vielseitig nutzbare Gewerbeflächen im Erdgeschoss eines repräsentativen Neubaus im beliebten Frankfurter Stadtteil Gallus, direkt an der Kleyerstraße. In unmittelbarer Nähe zum Europaviertel und mit ausgezeichneter Anbindung ist dieser Standort ideal für Handel, Büro oder...
Weitere Informationen
Sonstiges
Wir bieten Ihnen Gewerbeimmobilien provisionsfrei an - sei es für Büro-, Handels- oder Logistikflächen.
Dank unserer langjährigen, tiefgreifenden Expertise im Immobilienmarkt sowie eines weitreichenden Netzwerks sind wir in der Lage, Ihnen nicht nur einen umfassenden und transparenten Überblick über die...
Anbieter der Immobilie

Online-ID: 2lpl45p
Referenznummer: 13110
Finde Angebote wie dieses
Hier geht es zu unserem Impressum, den Allgemeinen Geschäftsbedingungen, den Hinweisen zum Datenschutz und nutzungsbasierter Online-Werbung.