
Sparkasse Rottal-Inn in Vertretung der Sparkassen-Immobilien-Vermittlungs-GmbH
Herr Jochen Gschwendtner
085 ···
Nr. anzeigenPreise & Kosten
Provision für Käufer
provisionsfrei
Lage
In praktischer Siedlungsrandlage befindet sich die Immobilie ca. 1 km vom Ortszentrum Arnstorfs entfernt.
Der Markt Arnstorf liegt im Zentrum Niederbayerns und hat ca. 7.000 Einwohner.
Arnstorf befindet sich etwa 20 km südlich von Landau, 29 km östlich von Dingolfing, 22 km nordöstlich von Eggenfelden, 18 km...
Das Haus
Kategorie
Doppelhaushälfte
Baujahr
2025
Bezug
2025
Energie & Heizung
Warum sehe ich diese Anzeige? – Du siehst diese Anzeige basierend auf Ihrer Navigation auf unserer Website und den Suchkriterien, die du verwendet hast.
Energieausweis: für diesen Gebäudetyp nicht notwendig
Weitere Energiedaten
Haustyp
KfW 40, Massivhaus
Energieträger
Elektro
Heizungsart
Fußbodenheizung, Zentralheizung
Details
Objektbeschreibung
**Entdecken Sie Ihr Traumhaus: Neubau-Doppelhaushälfte im modernen KFW-40-Standard!**
Willkommen im Zuhause Ihrer Träume! Diese exklusive Doppelhaushälfte im zeitgemäßen Neubau-Design erfüllt höchste Energieeffizienzstandards und bietet mit einer Wohnfläche von großzügigen 124,63 m² den idealen Raum für Ihr neues...
Weitere Informationen
Sonstiges
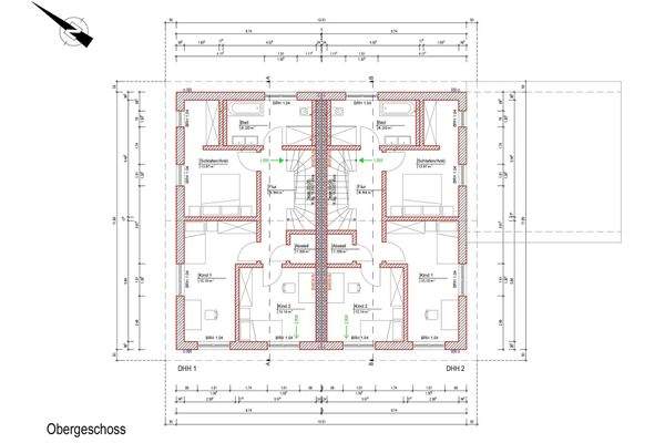
Die nachfolgenden Grundrisse dienen der Übersicht und sind nicht zur Maßentnahme geeignet. Die eingezeichneten Einrichtungsgegenstände sind Gestaltungsvorschläge und zählen nicht zum Vertragsumfang.
© Bayerische Vermessungsverwaltung (2025), Datenquelle: Geoportal Bayern www.geoportal.bayern.de; Lageplan...
Anbieter der Immobilie
Sparkasse Rottal-Inn in Vertretung der Sparkassen-Immobilien-Vermittlungs-GmbH
Pfarrkirchener Str. 16, 84307 Eggenfelden
Online-ID: 2lpvh5t
Referenznummer: 1/20/008-155/010037
Finde Angebote wie dieses
Hier geht es zu unserem Impressum, den Allgemeinen Geschäftsbedingungen, den Hinweisen zum Datenschutz und nutzungsbasierter Online-Werbung.