
Mittelsmann Philipp Sulek GmbH
Herr Michael Resch
+43 ···
Nr. anzeigenPreise & Kosten
Provision für Käufer
3% des Kaufpreises zzgl. 20% USt.
Die Wohnung
Wohnungslage
1. Geschoss
Bezug
sofort
Wohnanlage
Energie & Heizung
Warum sehe ich diese Anzeige? – Du siehst diese Anzeige basierend auf Ihrer Navigation auf unserer Website und den Suchkriterien, die du verwendet hast.
Heizwärmebedarf (HWB)
25,00 kWh/(m²·a)
Gesamtenergieeffizienz (fGEE)
0,39
Weitere Energiedaten
Energieträger
Erdwärme, Solar
Haustyp
Niedrigenergiehaus
Heizungsart
Fußbodenheizung, Zentralheizung
Details
Objektbeschreibung
Das Wichtigste auf einen Blick
* Kürzlich fertiggestelltes Bauprojekt (2024) in hochwertiger Bauweise und Ausstattung
* Moderne Haustechnik: Erdwärmepumpe mit Fußbodenheizung, Kühlfunktion im Sommer und PV Anlage
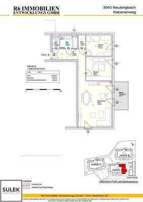
* Die Wohnung umfasst 76,9 m², aufgeteilt in Vorraum, 3 Zimmer, Abstellraum, Bad...
Weitere Informationen
Stichworte
Tiefgarage vorhanden, Süd-Ost-Balkon/Terrasse, Anzahl der Badezimmer: 1, Anzahl der separaten WCs: 1, Anzahl Balkone: 1, Balkon-Terrassen-Fläche: 8,20 m², Bundesland: Niederösterreich, Wohnungsnr.: 8
Anbieter der Immobilie
Mittelsmann Philipp Sulek GmbH
Fasangasse 30/10, 1030 WIEN
Online-ID: 2lpyp57
Referenznummer: OBGC202507181425134903666447a95
Finde Angebote wie dieses
Günstige Immobilienfinanzierung einfach online berechnen
Persönliches Angebot berechnenWarum sehe ich diese Werbung? – Du siehst diese Werbung basierend auf Deiner Navigation auf unserer Website und der von Dir verwendeten Suchkriterien.
Diese Werbung wird bezahlt von durchblicker
Werbung melden
Hier geht es zu unserem Impressum, den Allgemeinen Geschäftsbedingungen, den Hinweisen zum Datenschutz und nutzungsbasierter Online-Werbung.