

E + V Hamburg Immobilien GmbH
Team Engel & Völkers Hamburg Projekte
+49 ···
Nr. anzeigenPreise & Kosten
Warum sehe ich diese Anzeige? – Du siehst diese Anzeige basierend auf Ihrer Navigation auf unserer Website und den Suchkriterien, die du verwendet hast.
Lage
Das Projekt 'The Lyte' liegt in der HafenCity - einem der modernsten und spannendsten Stadtteile Hamburgs. Die HafenCity vereint auf einzigartige Weise moderne Bürogebäude, luxuriöse Wohnprojekte sowie ein vielfältiges Angebot an Einkaufsmöglichkeiten und Gastronomie. Im südlichen Teil des Überseequartiers entsteht ein...
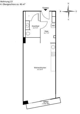
Die Wohnung
Wohnungslage
4. Geschoss
Wohnanlage
Energie & Heizung
Warum sehe ich diese Anzeige? – Du siehst diese Anzeige basierend auf Ihrer Navigation auf unserer Website und den Suchkriterien, die du verwendet hast.
Energieausweistyp
Bedarfsausweis
Gebäudetyp
Wohngebäude
Baujahr laut Energieausweis
2024
Gültigkeit
seit 30.09.2020
Effizienzklasse
B
Endenergiebedarf
66,40 kWh/(m²·a)
Weitere Energiedaten
Energieträger
Fernwärme
Heizungsart
Fußbodenheizung
Details
Objektbeschreibung
Diese lichtdurchflutete 1-Zimmer-Wohnung mit Südausrichtung begeistert durch ihren offenen Blick über den Hafen und die Elbe. Großzügige bodentiefe Fenster lassen viel Licht herein und schaffen in Kombination mit dem edlen Eichenparkett eine warme, klare Atmosphäre. Die hochwertige Siemens-Einbauküche und das stilvolle Bad...
Ausstattung
Optional[Built-in Kitchen], Optional.empty, Optional.empty, Optional[Harbour View, Water View], Schwimmbad, Optional.empty
Preisinformation
Nettokaltmiete: 1.451,00 EUR
Weitere Informationen
Stichworte
Süd-Balkon/Terrasse, Anzahl der Schlafzimmer: 1, Anzahl der Badezimmer: 1, Anzahl Balkone: 1
Anbieter der Immobilie
E + V Hamburg Immobilien GmbH
Stadthausbrücke 5, 20355 Hamburg

Online-ID: 2lq4k5x
Referenznummer: I-0473F4-W-0473F4
Finde Angebote wie dieses
Hier geht es zu unserem Impressum, den Allgemeinen Geschäftsbedingungen, den Hinweisen zum Datenschutz und nutzungsbasierter Online-Werbung.