

RSI Immobilien GmbH
Herr Andreas Baumann
+49 ···
Nr. anzeigenPreise & Kosten
Provision für Käufer
2,98 % inkl. 19% MwSt.
Lage
Das Zweifamilienhaus befindet sich in einer ruhigen Wohngegend im Stadtteil Waldperlach im Südosten Münchens. Die Umgebung ist geprägt von gepflegten Ein- und Zweifamilienhäusern mit viel Grün und familienfreundlichem Flair.
Die Anbindung an den öffentlichen Nahverkehr ist sehr gut: Die Bushaltestellen "Putzbrunner...
Die Immobilie
Zu diesem Angebot wurden vom Anbieter keine weiteren Daten hinterlegt. Für weitere Informationen bitte den Anbieter kontaktieren.
Nach Informationen fragenDetails
Objektbeschreibung
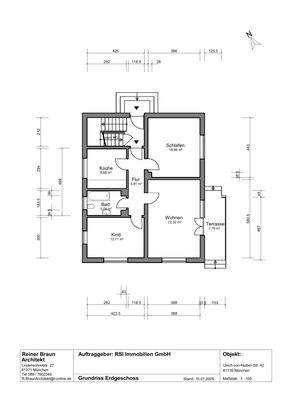
Zum Verkauf steht ein sonniges, ruhiges Grundstück (906 m²), das derzeit mit einem gepflegten Zweifamilienhaus aus dem Jahr 1958 bebaut ist. Das Haus bietet eine Gesamtwohnfläche von rund 151 m², verteilt auf 2 Wohnungen mit insgesamt 8 Räumen.
Der Bodenrichtwert (2024) liegt bei 2.500 €/ m². Auf dieser Basis würde...
Ausstattung
Informationen zur derzeitigen Bebauung:
- Bodenrichtwert (2024): 2.500 €/ m²
- bebaubar mit einem MFH oder großem Doppelhaus
- kalkulierbare Wohnfläche ca. 400 m² bis 425 m²
- alleinstehendes 2-Fam.-Haus mit weitläufigem Garten
- derzeitige Gesamtwohnfläche ca. 151 m²
- Wohnung im EG mit sonniger...
Preisinformation
1 Stellplatz
2 Garagenstellplätze
Weitere Informationen
Sonstiges
Dieses Grundstück wird von der RSI Immobilien GmbH im Alleinauftrag angeboten.
Hinweis auf Provisionspflicht:
Bei Zustandekommen eines rechtsgültigen, notariellen Kaufvertrages besteht seitens der RSI Immobilien GmbH Anspruch auf eine Käufer-Provision in Höhe von 2,98 % inkl. 19 % MwSt. aus dem...
Anbieter der Immobilie

Online-ID: 2lq6c5g
Referenznummer: RSI-1084
Finde Angebote wie dieses
Hier geht es zu unserem Impressum, den Allgemeinen Geschäftsbedingungen, den Hinweisen zum Datenschutz und nutzungsbasierter Online-Werbung.