

SSC Treuhand GmbH
074 ···
Nr. anzeigenPreise & Kosten
Provision für Käufer
3,57 % incl. MwSt.
Lage
Wie bereits erwähnt, steht die Nähe zur B27 und nach Tübingen bei diesem Objekt im Mittelpunkt. Die B27 erreichen Sie innerhalb weniger Minuten. Sie möchten lieber auf Bus und Bahn umsteigen? Auch dies ist kein Problem in Dußlingen, Sie erreichen den Bahnhof in gut 20 Minuten zu Fuß. Eine Bushaltestelle befindet sich drei...
Die Wohnung
Wohnungslage
Dachgeschoss
Wohnanlage
Energie & Heizung
Warum sehe ich diese Anzeige? – Du siehst diese Anzeige basierend auf Ihrer Navigation auf unserer Website und den Suchkriterien, die du verwendet hast.
Energieausweistyp
Verbrauchsausweis
Gebäudetyp
Wohngebäude
Baujahr laut Energieausweis
2001
Wesentliche Energieträger
Gas
Gültigkeit
13.07.2018 bis 12.07.2028
Effizienzklasse
C
Endenergieverbrauch
88,10 kWh/(m²·a)
Weitere Energiedaten
Energieträger
Gas
Heizungsart
Zentralheizung
Details
Objektbeschreibung
Das aus zehn WE bestehende Objekt, befindet sich in einem ruhigen Wohngebiet, mitten im Herzen von Dußlingen. Die genannten WE harmonieren sehr gut miteinander. Die selbstständige Gemeinde Dußlingen zeichnet sich mittlerweile mit ihrer perfekten Lage durch die nahe Anbindung an die B27 und der guten Verbindung nach Tübingen...
Weitere Informationen
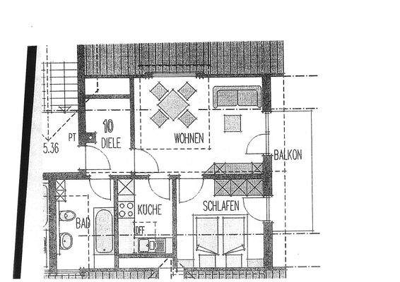
Raumaufteilung:
Vom Flur aus rechts befindet sich das Badezimmer sowie die Küche. Geradeaus gelangen Sie in das Wohn-/Esszimmer, und rechts davon in das Schlafzimmer. Sie können von beiden Zimmern aus auf den Balkon gelangen.
Besichtigungstermine:
Besichtigungstermine können Sie gerne mit uns telefonisch...
Anbieter der Immobilie
Online-ID: 2lq7e5w
Referenznummer: 055/10
Finde Angebote wie dieses
Hier geht es zu unserem Impressum, den Allgemeinen Geschäftsbedingungen, den Hinweisen zum Datenschutz und nutzungsbasierter Online-Werbung.