
allkauf haus GmbH
Herr Vitali Stettinger
+49 ···
Nr. anzeigenPreise & Kosten
Provision für Käufer
provisionsfrei
Lage
Das Haus befindet sich in einer attraktiven Wohngegend in Aschaffenburg Damm. Hier profitieren Sie von der hervorragenden Infrastruktur mit direkter Nähe zu Bahnhof, Grundschule, Kindergarten und Spielplatz. Die Kombination aus urbaner Lage und ruhigem Wohngebiet macht diesen Standort besonders attraktiv für Familien.
Das Haus
Kategorie
Doppelhaushälfte
Baujahr
2026
Energie & Heizung
Warum sehe ich diese Anzeige? – Du siehst diese Anzeige basierend auf Ihrer Navigation auf unserer Website und den Suchkriterien, die du verwendet hast.
Weitere Energiedaten
Haustyp
KfW 40
Heizungsart
Fußbodenheizung, Luft-/Wasser-Wärmepumpe
Details
Objektbeschreibung
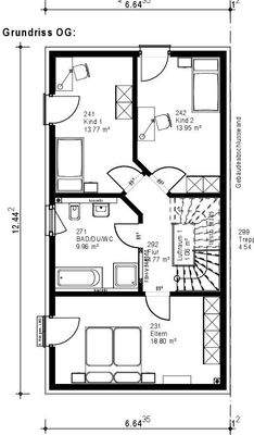
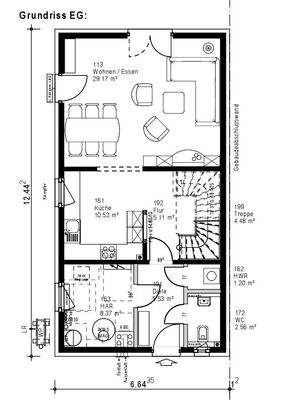
Willkommen in Ihrem neuen Zuhause, einem projektierten Reihenendhaus, das Sie ganz nach Ihren Wünschen gestalten können. Mit einer großzügigen Wohnfläche von 120 m² auf zwei Etagen bietet es genügend Raum für Ihre Familie. Das Haus verfügt über vier Zimmer, darunter drei gemütliche Schlafzimmer und ein stilvolles Badezimmer...
Ausstattung
Dieses Reihenendhaus beeindruckt durch seine gehobene Ausstattung:
- Hochwertige Fliesen- und Laminatböden für eine edle Optik und einfache Pflege.
- Eine effiziente Luft-Wasser-Wärmepumpe sorgt für wohlige Wärme und schont die Umwelt.
- Niedrigenergiehaus mit Standards KFW40 und KFW55 garantiert niedrige...
Weitere Informationen
Sonstiges
allkauf heißt: Maximale Sicherheit, kurze Lieferzeiten, garantierte Fertigstellung. Verlassen Sie sich auf unsere Festpreisgarantie sowie die garantierte Fertigstellung Ihres Traumhauses.
Die allkauf Dienstleistungspakete:
Bewegen Sie sich lieber in der Komfortzone, oder trauen Sie sich richtig viel...
Anbieter der Immobilie
allkauf haus GmbH
Ludwig Erhard Str. 2, 68162 Bad Vilbel
Online-ID: 2lq7k5v
Referenznummer: BV VS Double 11 BY 10.06.25
Finde Angebote wie dieses
Hier geht es zu unserem Impressum, den Allgemeinen Geschäftsbedingungen, den Hinweisen zum Datenschutz und nutzungsbasierter Online-Werbung.